199.999€ + TVA
Apartament de vanzare cu 3 camere in bloc nou in cartierul Marasti
Cluj-Napoca, Marasti
610
P25064
Harta
Trimite acum link-ul unui prieten pe
Caracteristici
- Nr. camere:3
- Suprafata utila:76 mp
- Etaj:Etaj 2
- Compartimentare:Semidecomandat
- Tip imobil:Bloc
- Regim inaltime:S+D+P+6
- Nr. bai:2
- S. construita:103 mp
- Confort:1
- Nr. bucatarii:1
- Nr. balcoane:1
- An constructie:2025
- Structura:Caramida
- Orientare:Sud-Est
Descriere
Apartament 3 camere de vanzare, semidecomandat, 76 mp, zona Marasti, Cluj-Napoca.
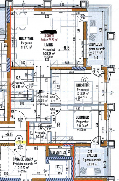
TABOO Imobiliare propune un apartament de vanzare cu 3 camere, semidecomandat, situat in localitatea Cluj-Napoca, zona Marasti, aflat la etajul 2 intr -un imobil tip bloc cu regim de inaltime pe Parter + 6 Etaje; anul constructiei 2025, structura caramida. Suprafata utila de 76 mp + balcon de 12 mp.
Apartamentul este structurat astfel:
• Hol ;
• Bucatarie;
• 2 bai ;
• Living cu balcon ;
• 2 dormitoare ;
• Hol intermediar ;
Finisajele interioare sunt urmatoarele:
• Usa intrare: metal;
• Tamplarie ferestre: pvc, termopan;
• Pereti: vopsea lavabila;
• Podele: nefinisat.
Utilitati si dotari:
• Bucatarie: nemobilata, neutilata;
• Mobilat: nemobilat;
• Utilitati: curent electric, apa, canalizare, gaz, catv;
• Izolatii: exterior, bloc izolat termic;
• Contorizare: apometre, contor gaz, contor curent electric;
• Caracteristici bloc: interfon, lift;
Apartamentul se vinde la stadiul de semifinisat.
Incalzirea se realizeaza prin centrala imobil, incalzire pardoseala.
Se accepta ca si modalitate de plata surse proprii sau credit bancar.
Prețul este de 199.999€ + TVA. Specificați telefonic codul de oferta / id: P25064
Citește mai mult
TABOO Imobiliare propune un apartament de vanzare cu 3 camere, semidecomandat, situat in localitatea Cluj-Napoca, zona Marasti, aflat la etajul 2 intr -un imobil tip bloc cu regim de inaltime pe Parter + 6 Etaje; anul constructiei 2025, structura caramida. Suprafata utila de 76 mp + balcon de 12 mp.
Apartamentul este structurat astfel:
• Hol ;
• Bucatarie;
• 2 bai ;
• Living cu balcon ;
• 2 dormitoare ;
• Hol intermediar ;
Finisajele interioare sunt urmatoarele:
• Usa intrare: metal;
• Tamplarie ferestre: pvc, termopan;
• Pereti: vopsea lavabila;
• Podele: nefinisat.
Utilitati si dotari:
• Bucatarie: nemobilata, neutilata;
• Mobilat: nemobilat;
• Utilitati: curent electric, apa, canalizare, gaz, catv;
• Izolatii: exterior, bloc izolat termic;
• Contorizare: apometre, contor gaz, contor curent electric;
• Caracteristici bloc: interfon, lift;
Apartamentul se vinde la stadiul de semifinisat.
Incalzirea se realizeaza prin centrala imobil, incalzire pardoseala.
Se accepta ca si modalitate de plata surse proprii sau credit bancar.
Prețul este de 199.999€ + TVA. Specificați telefonic codul de oferta / id: P25064
Specificații
Curent
Apa
Canalizare
Gaz
CATV
Centrala imobil
Incalzire pardoseala
Exterior
Bloc izolat termic
Vopsea lavabila
PVC
Metal
Nemobilata
Neutilata
Apometre
Contor gaz
Nemobilat
Interfon
Lift
Ati vizualizat anuntul: Apartament de vanzare cu 3 camere in bloc nou in cartierul Marasti
Ești interesat de aceasta proprietate ?
Completeaza datele tale și te vom suna noi!




