125.800€
Apartament 3 camere parcare si bloc cu lift Doamna Stanca Sibiu
Sibiu, Doamna Stanca
1237
P25261
Harta
Trimite acum link-ul unui prieten pe
Caracteristici
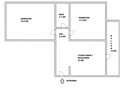
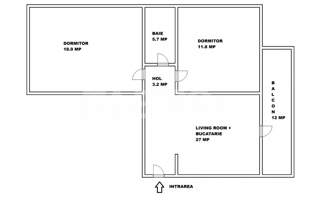
- Nr. camere:3
- Suprafata utila:67 mp
- Etaj:Etaj 5
- Compartimentare:Decomandat
- Tip imobil:Bloc
- Regim inaltime:P+5
- Nr. bai:1
- S. construita:92 mp
- Confort:1
- Nr. bucatarii:1
- Nr. balcoane:1
- Nr. parcari:1
- An constructie:2015
- An renovare:2022
- Structura:Caramida
- Orientare:Sud
Descriere
Apartament 3 camere de vanzare, decomandat, 67 mp, zona Doamna Stanca, Sibiu.
Apartament luminos si spatios, modern amenajat. Zona in care este amplasat acest apartament este una foarte bine cotata pe piata imobiliara, oferind locatarilor numeroase beneficii si acces facil catre numeroase obiective de interes public precum: magazine, restaurante, institutii bancare si numeroase locuri de munca din zona Shopping City.
Avantaje majore ale acestui apartament:
• Un loc de parcare inclus in pret
• Pretabil investitie sigura - bloc cu lift
• Orientare spre Soare
• Locatie ferita de aglomeratie - bloc retras de la strada principala
TABOO Imobiliare propune un apartament de vanzare cu 3 camere, decomandat, situat in localitatea Sibiu, zona Doamna Stanca, aflat la etajul 5 intr -un imobil tip bloc cu regim de inaltime pe Parter + 5 Etaje; anul constructiei 2015, structura caramida. Suprafata utila de 67 mp + balcon deschis de 12 mp.
Apartamentul este structurat astfel:
• Hol;
• Bucatarie;
• Baie;
• Living cu balcon;
• Dormitor cu balcon;
• Dormitor
• Hol intermediar;
Finisajele interioare sunt moderne:
• Usa intrare: metal;
• Usi interioare: celulare;
• Tamplarie ferestre: pvc, termopan;
• Pereti: vopsea lavabila, faianta, tapet;
• Podele: parchet, gresie.
Utilitati si dotari:
• Bucatarie: mobilata, utilata;
• Mobilat: complet;
• Utilitati: curent electric, apa, canalizare, gaz, catv, telefon, acces internet, fibra optica;
• Izolatii: exterior, bloc izolat termic;
• Contorizare: apometre, contor gaz, contor curent electric, contorizare separata;
• Caracteristici bloc: interfon, lift, acoperis.
Apartamentul se vinde mobilat si utilat cu: plita pe gaz, cuptor, hota, masina de spalat rufe, uscator rufe, masina de spalat vase, frigider cu congelator.
Incalzirea se realizeaza prin centrala proprie, calorifere si dispune de sistem de climatizare (A.C.)
Se accepta ca si modalitate de plata surse proprii sau credit bancar.
Prețul este de 125.800€. Specificați telefonic codul de oferta / id: P25261
Citește mai mult
Apartament luminos si spatios, modern amenajat. Zona in care este amplasat acest apartament este una foarte bine cotata pe piata imobiliara, oferind locatarilor numeroase beneficii si acces facil catre numeroase obiective de interes public precum: magazine, restaurante, institutii bancare si numeroase locuri de munca din zona Shopping City.
Avantaje majore ale acestui apartament:
• Un loc de parcare inclus in pret
• Pretabil investitie sigura - bloc cu lift
• Orientare spre Soare
• Locatie ferita de aglomeratie - bloc retras de la strada principala
TABOO Imobiliare propune un apartament de vanzare cu 3 camere, decomandat, situat in localitatea Sibiu, zona Doamna Stanca, aflat la etajul 5 intr -un imobil tip bloc cu regim de inaltime pe Parter + 5 Etaje; anul constructiei 2015, structura caramida. Suprafata utila de 67 mp + balcon deschis de 12 mp.
Apartamentul este structurat astfel:
• Hol;
• Bucatarie;
• Baie;
• Living cu balcon;
• Dormitor cu balcon;
• Dormitor
• Hol intermediar;
Finisajele interioare sunt moderne:
• Usa intrare: metal;
• Usi interioare: celulare;
• Tamplarie ferestre: pvc, termopan;
• Pereti: vopsea lavabila, faianta, tapet;
• Podele: parchet, gresie.
Utilitati si dotari:
• Bucatarie: mobilata, utilata;
• Mobilat: complet;
• Utilitati: curent electric, apa, canalizare, gaz, catv, telefon, acces internet, fibra optica;
• Izolatii: exterior, bloc izolat termic;
• Contorizare: apometre, contor gaz, contor curent electric, contorizare separata;
• Caracteristici bloc: interfon, lift, acoperis.
Apartamentul se vinde mobilat si utilat cu: plita pe gaz, cuptor, hota, masina de spalat rufe, uscator rufe, masina de spalat vase, frigider cu congelator.
Incalzirea se realizeaza prin centrala proprie, calorifere si dispune de sistem de climatizare (A.C.)
Se accepta ca si modalitate de plata surse proprii sau credit bancar.
Prețul este de 125.800€. Specificați telefonic codul de oferta / id: P25261
Specificații
Curent
Apa
Canalizare
Gaz
CATV
Telefon
Acces internet
Fibra optica
Centrala proprie
Calorifere
Aer conditionat
Exterior
Bloc izolat termic
Vopsea lavabila
Faianta
Tapet
Parchet
Gresie
Finisat
PVC
Metal
Celulare
Mobilata
Utilata
Apometre
Contor gaz
Complet
Interfon
Lift
Acoperis
Ati vizualizat anuntul: Apartament 3 camere parcare si bloc cu lift Doamna Stanca Sibiu
Ești interesat de aceasta proprietate ?
Completeaza datele tale și te vom suna noi!













