165.000€
Apartament de vanzare 3 camere decomandat Mihai Viteazul bloc cu lift
Sibiu, Mihai Viteazul
145
P26757
Video
Harta
Trimite acum link-ul unui prieten pe
Caracteristici
- Nr. camere:3
- Suprafata utila:66 mp
- Etaj:Etaj 7
- Compartimentare:Decomandat
- Tip imobil:Bloc
- Regim inaltime:P+8
- Nr. bai:2
- S. construita:84 mp
- Confort:1
- Nr. bucatarii:1
- Nr. balcoane:1
- An constructie:1970
- An renovare:2025
- Structura:Beton
- Orientare:Vest
Descriere
Apartament 3 camere de vanzare, decomandat, 66 mp, zona Mihai Viteazul, Sibiu. Apartament modern renovat, aflat la etaj intermediar, orientat spre Vest. Beneficiaza de instalatie sanitara schimbata integral si instalatie electrica schimbata partial. Este pozitionat strategic, avand iesire rapida catre Mihai Viteazul.
Avantaje majore ale acestui apartament:
• Decomandare cu bucatarie separata
• Orientare spre curte interioara – liniste, lumina naturala pe tot parcursul zilei
• Zona retrasa de la zgomotul bulevardului
• Zona excelenta, aproape de magazine, scoli, gradinite, statii de autobuz, farmacii, piata agroalimentara.
• Locatie ferita de aglomeratie
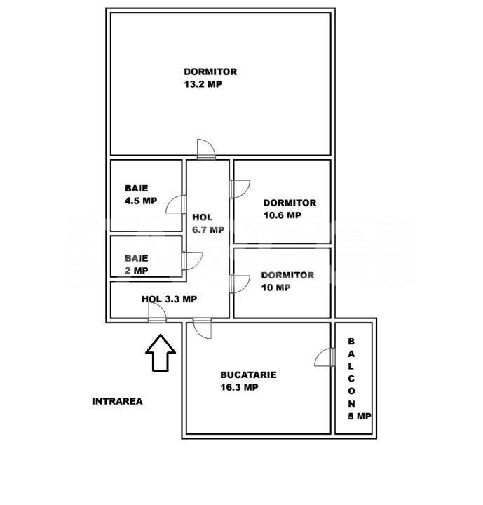
TABOO Imobiliare propune un apartament de vanzare cu 3 camere, decomandat, situat in localitatea Sibiu, zona Mihai Viteazul, aflat la etajul 7 intr -un imobil tip bloc cu regim de inaltime pe Parter + 8 Etaje; anul constructiei 1970, structura beton. Suprafata utila de 66 mp + balcon inchis de 5 mp.
Apartamentul este structurat astfel:
• Hol de compartimentare;
• Bucatarie separata;
• Baie de serviciu ( grup sanitar);
• Baie cu dus;
• Dormitor cu 2 paturi single;
• Dormitor cu 2 paturi single;
• Dormitor cu 3 paturi single.
Finisajele interioare sunt moderne:
• Usa intrare: metal;
• Usi interioare: celulare;
• Tamplarie ferestre: pvc, termopan;
• Pereti: vopsea lavabila, faianta;
• Podele: parchet, gresie.
Utilitati si dotari:
• Bucatarie: mobilata, utilata;
• Mobilat: complet;
• Utilitati: curent electric, apa, canalizare, gaz, catv, telefon, acces internet, fibra optica;
• Izolatii: exterior, bloc izolat termic;
• Contorizare: apometre, contor gaz, contor curent electric, contorizare separata;
• Caracteristici casa/vila: interfon, lift, acoperis.
Apartamentul se vinde mobilat si utilat cu: plita electrica, cuptor, hota, masina de spalat rufe, frigider cu congelator, televizor.
Incalzirea se realizeaza prin centrala proprie, calorifere.
Se accepta ca si modalitate de plata surse proprii sau credit bancar.
Prețul este de 165.000€. Specificați telefonic codul de oferta / id: P26757
Citește mai mult
Avantaje majore ale acestui apartament:
• Decomandare cu bucatarie separata
• Orientare spre curte interioara – liniste, lumina naturala pe tot parcursul zilei
• Zona retrasa de la zgomotul bulevardului
• Zona excelenta, aproape de magazine, scoli, gradinite, statii de autobuz, farmacii, piata agroalimentara.
• Locatie ferita de aglomeratie
TABOO Imobiliare propune un apartament de vanzare cu 3 camere, decomandat, situat in localitatea Sibiu, zona Mihai Viteazul, aflat la etajul 7 intr -un imobil tip bloc cu regim de inaltime pe Parter + 8 Etaje; anul constructiei 1970, structura beton. Suprafata utila de 66 mp + balcon inchis de 5 mp.
Apartamentul este structurat astfel:
• Hol de compartimentare;
• Bucatarie separata;
• Baie de serviciu ( grup sanitar);
• Baie cu dus;
• Dormitor cu 2 paturi single;
• Dormitor cu 2 paturi single;
• Dormitor cu 3 paturi single.
Finisajele interioare sunt moderne:
• Usa intrare: metal;
• Usi interioare: celulare;
• Tamplarie ferestre: pvc, termopan;
• Pereti: vopsea lavabila, faianta;
• Podele: parchet, gresie.
Utilitati si dotari:
• Bucatarie: mobilata, utilata;
• Mobilat: complet;
• Utilitati: curent electric, apa, canalizare, gaz, catv, telefon, acces internet, fibra optica;
• Izolatii: exterior, bloc izolat termic;
• Contorizare: apometre, contor gaz, contor curent electric, contorizare separata;
• Caracteristici casa/vila: interfon, lift, acoperis.
Apartamentul se vinde mobilat si utilat cu: plita electrica, cuptor, hota, masina de spalat rufe, frigider cu congelator, televizor.
Incalzirea se realizeaza prin centrala proprie, calorifere.
Se accepta ca si modalitate de plata surse proprii sau credit bancar.
Prețul este de 165.000€. Specificați telefonic codul de oferta / id: P26757
Specificații
Curent
Apa
Canalizare
Gaz
CATV
Telefon
Acces internet
Fibra optica
Centrala proprie
Calorifere
Exterior
Bloc izolat termic
Vopsea lavabila
Faianta
Parchet
Gresie
Finisat
PVC
Metal
Celulare
Lemn
Mobilata
Utilata
Apometre
Contor gaz
Complet
Interfon
Lift
Acoperis
Ati vizualizat anuntul: Apartament de vanzare 3 camere decomandat Mihai Viteazul bloc cu lift
Ești interesat de aceasta proprietate ?
Completeaza datele tale și te vom suna noi!
















