Comision 0%
145.000€
Apartament de vanzare decomandat cu 3 camere balcon etaj 2 in Turnisor
Sibiu, Turnisor
837
P26365
Harta
Trimite acum link-ul unui prieten pe
Caracteristici
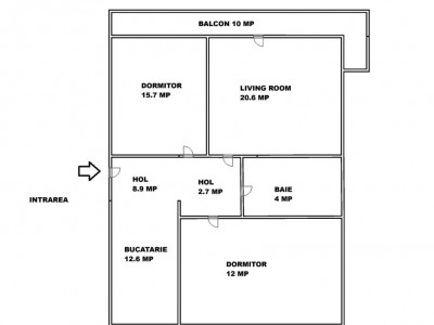
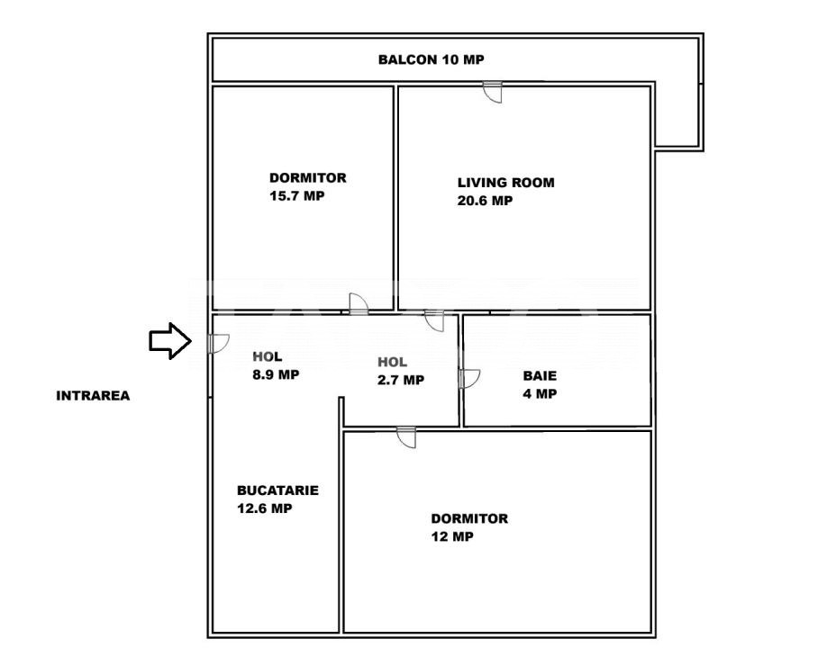
- Nr. camere:3
- Suprafata utila:77 mp
- Etaj:Etaj 2
- Compartimentare:Decomandat
- Tip imobil:Bloc
- Regim inaltime:P+7
- Nr. bai:1
- S. construita:102 mp
- Confort:1
- Nr. bucatarii:1
- Nr. balcoane:1
- An constructie:1991
- An renovare:2010
- Structura:Beton
- Orientare:Est
Descriere
Apartament 3 camere de vanzare, decomandat, 77 mp, zona Turnisor, Sibiu. Apartamentul cu conexiunea inspre zona Industriala, situat in intersectia Alba Iulia cu cele mai importante artere de acces in oras.
Apartamentul cu spatii inalte, luminate, cu acces facil catre zonele de interes, gandit pentru confortul familiei tale. Apartamentul are nevoie de o igienizare si sa aduceti mobilierul dorit. Comision 0% pentru dumneavoastra pentru cumpararea acestui apartament.
Avantaje majore ale acestui apartament:
• Pretabil investitie sigura
• Compartimentare decomandata
• Locatie ferita de aglomeratie
• Etaj intermediar si bloc cu lift
TABOO Imobiliare propune un apartament de vanzare cu 3 camere, decomandat, situat in localitatea Sibiu, zona Turnisor, aflat la etajul 2 intr -un imobil tip bloc cu regim de inaltime pe Parter + 7 Etaje; anul constructiei 1991, structura beton. Suprafata utila de 77 mp + balcon de 10 mp.
Apartamentul este structurat astfel:
• Hol la intrare;
• Bucatarie semi-deschisa cu holul (poate fi inchisa);
• Baie cu dus si geam de aerisire;
• Living cu balcon;
• Dormitor cu balcon;
• Hol intermediar;
• Dormitor
Finisajele interioare sunt clasice:
• Usa intrare: metal;
• Usi interioare: celulare;
• Tamplarie ferestre: pvc, termopan;
• Pereti: vopsea lavabila, faianta;
• Podele: parchet, gresie.
Utilitati si dotari:
• Bucatarie: mobilata, neutilata;
• Mobilat: partial;
• Utilitati: curent electric, apa, canalizare, gaz, catv, telefon, acces internet, fibra optica;
• Contorizare: apometre, contor gaz, contor curent electric, contorizare separata;
• Caracteristici bloc: interfon, lift, acoperis.
Apartamentul se vinde semimobilat si neutilat.
Incalzirea se realizeaza prin centrala proprie, calorifere.
Se accepta ca si modalitate de plata surse proprii sau credit bancar.
Prețul este de 145.000€. Specificați telefonic codul de oferta / id: P26365
Citește mai mult
Apartamentul cu spatii inalte, luminate, cu acces facil catre zonele de interes, gandit pentru confortul familiei tale. Apartamentul are nevoie de o igienizare si sa aduceti mobilierul dorit. Comision 0% pentru dumneavoastra pentru cumpararea acestui apartament.
Avantaje majore ale acestui apartament:
• Pretabil investitie sigura
• Compartimentare decomandata
• Locatie ferita de aglomeratie
• Etaj intermediar si bloc cu lift
TABOO Imobiliare propune un apartament de vanzare cu 3 camere, decomandat, situat in localitatea Sibiu, zona Turnisor, aflat la etajul 2 intr -un imobil tip bloc cu regim de inaltime pe Parter + 7 Etaje; anul constructiei 1991, structura beton. Suprafata utila de 77 mp + balcon de 10 mp.
Apartamentul este structurat astfel:
• Hol la intrare;
• Bucatarie semi-deschisa cu holul (poate fi inchisa);
• Baie cu dus si geam de aerisire;
• Living cu balcon;
• Dormitor cu balcon;
• Hol intermediar;
• Dormitor
Finisajele interioare sunt clasice:
• Usa intrare: metal;
• Usi interioare: celulare;
• Tamplarie ferestre: pvc, termopan;
• Pereti: vopsea lavabila, faianta;
• Podele: parchet, gresie.
Utilitati si dotari:
• Bucatarie: mobilata, neutilata;
• Mobilat: partial;
• Utilitati: curent electric, apa, canalizare, gaz, catv, telefon, acces internet, fibra optica;
• Contorizare: apometre, contor gaz, contor curent electric, contorizare separata;
• Caracteristici bloc: interfon, lift, acoperis.
Apartamentul se vinde semimobilat si neutilat.
Incalzirea se realizeaza prin centrala proprie, calorifere.
Se accepta ca si modalitate de plata surse proprii sau credit bancar.
Prețul este de 145.000€. Specificați telefonic codul de oferta / id: P26365
Specificații
Curent
Apa
Canalizare
Gaz
CATV
Telefon
Acces internet
Fibra optica
Centrala proprie
Calorifere
Vopsea lavabila
Faianta
Parchet
Gresie
Finisat
PVC
Metal
Celulare
Mobilata
Neutilata
Apometre
Contor gaz
Partial
Interfon
Lift
Acoperis
Ati vizualizat anuntul: Apartament de vanzare decomandat cu 3 camere balcon etaj 2 in Turnisor
Ești interesat de aceasta proprietate ?
Completeaza datele tale și te vom suna noi!









