375.000€
Duplex cu 2 garaje semifinisat de vanzare in cartierul Dambul Rotund
Cluj-Napoca, Dambul-Rotund
4
P26395
Harta
Trimite acum link-ul unui prieten pe
Caracteristici
- Nr. camere:4
- Suprafata. utila:156 mp
- S. construita:187 mp
- S. teren:235 mp
- Nr. bai:3
- Nr. bucatarii:2
- Nr. parcari:2
- Nr. garaje:2
- Front stradal:12 m
- Nr. fronturi:1
- An constructie:2025
- Structura rezistenta:Caramida
- Regim inaltime:D+P+1
- Orientare:Sud-Vest
Descriere
Descoperă confortul unui cămin modern, perfect pentru tine și familia ta, situat într-una dintre cele mai apreciate zone din Cluj-Napoca – Dâmbul Rotund.
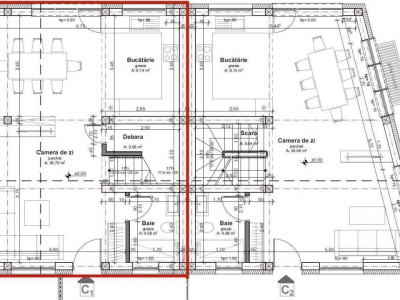
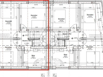
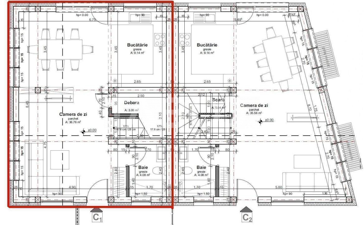
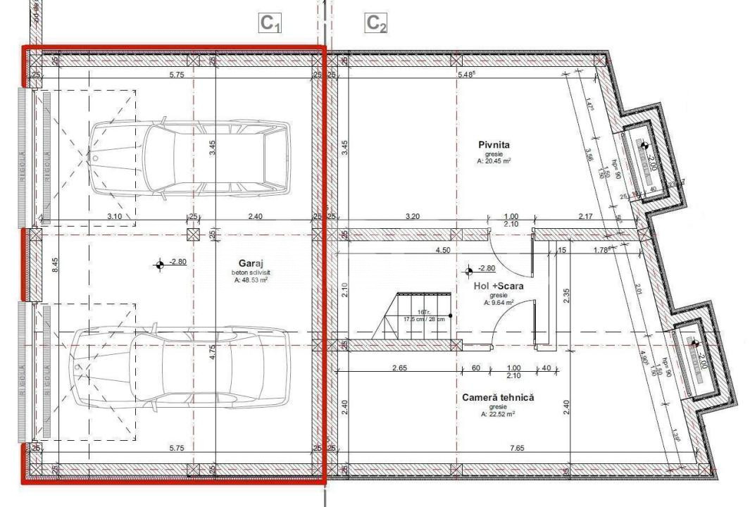
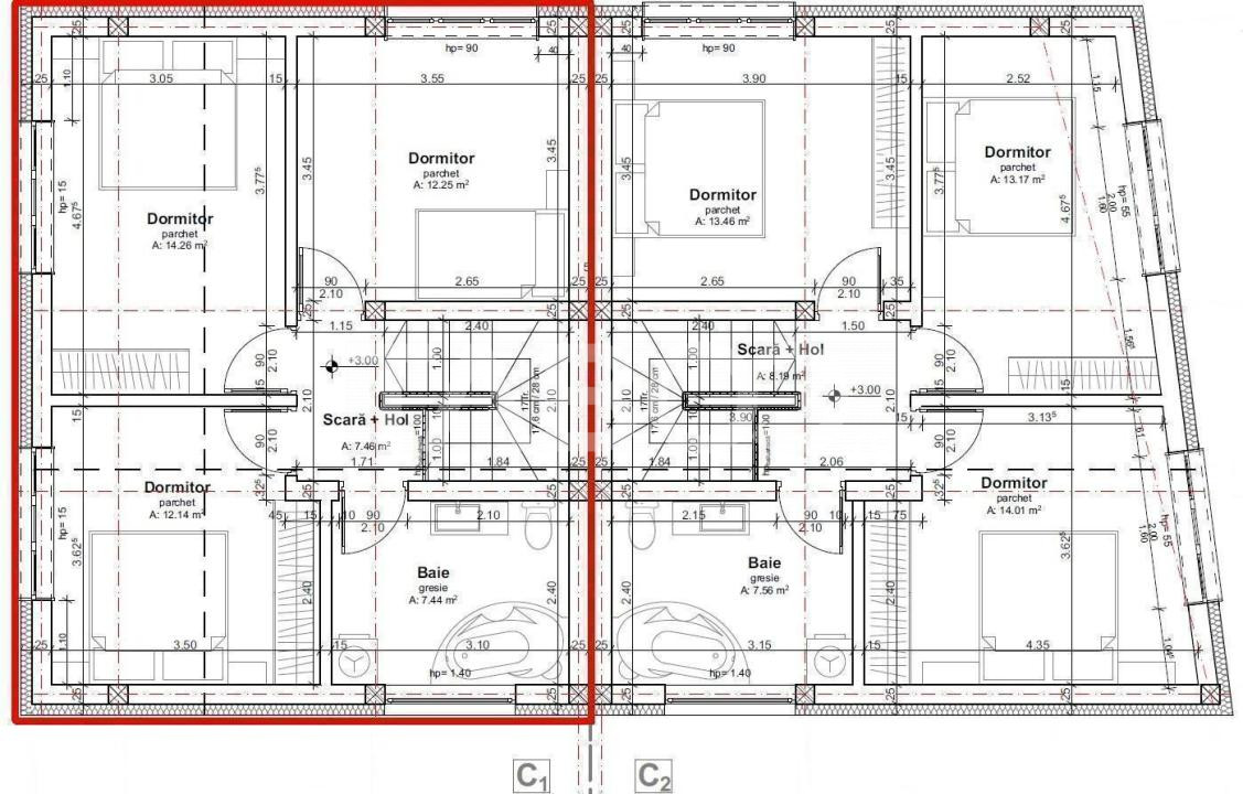
TABOO Imobiliare îți propune spre vânzare o casă cuplată, spațioasă și bine compartimentată, cu o panoramă deosebită asupra orașului. Proprietatea are o suprafață utilă de 156 mp și este amplasată pe un teren de 235 mp, la care se adaugă o cotă parte de 50 mp din drumul de acces. Imobilul este dispus pe trei niveluri: Subsol + Parter + Etaj.
Compartimentare:
Demisol: două garaje spațioase și spațiu de depozitare;
Parter: living generos cu bucătărie open-space și zonă de dining, debara, baie și terasă;
Mansardă înaltă: trei dormitoare luminoase, hol și o baie mare;
Locuința se predă la stadiul de semifinisat și beneficiază de dotări moderne:
încălzire în pardoseală;
centrală termică proprie;
tâmplărie PVC cu geamuri termopan (7 camere);
instalații electrice și sanitare trase pe poziție;
pereți finisați cu glet și vopsea lavabilă;
acoperiș din tablă;
curte amenajată.
Curtea liberă de aproximativ 185 mp oferă spațiu ideal pentru relaxare, loc de joacă pentru copii și două locuri de parcare.
Avantaje locație:
grădiniță privată la doar 50 m;
Școala Gimnazială Emil Isac la 700 m;
acces rapid către Gară (3 minute);
proximitate față de viitorul mall Rivus (7 minute);
în apropiere de instituții publice, bănci, facultăți și mijloace de transport.
Această proprietate reprezintă alegerea ideală pentru cei care își doresc un stil de viață modern, într-o zonă liniștită, dar bine conectată la facilitățile orașului.
Există posibilitatea de achiziție a ambelor unități locative.
Pentru mai multe detalii sau programarea unei vizionări, echipa TABOO Imobiliare îți stă la dispoziție!
Prețul este de 375.000€. Specificați telefonic codul de oferta / id: P26395
Citește mai mult
TABOO Imobiliare îți propune spre vânzare o casă cuplată, spațioasă și bine compartimentată, cu o panoramă deosebită asupra orașului. Proprietatea are o suprafață utilă de 156 mp și este amplasată pe un teren de 235 mp, la care se adaugă o cotă parte de 50 mp din drumul de acces. Imobilul este dispus pe trei niveluri: Subsol + Parter + Etaj.
Compartimentare:
Demisol: două garaje spațioase și spațiu de depozitare;
Parter: living generos cu bucătărie open-space și zonă de dining, debara, baie și terasă;
Mansardă înaltă: trei dormitoare luminoase, hol și o baie mare;
Locuința se predă la stadiul de semifinisat și beneficiază de dotări moderne:
încălzire în pardoseală;
centrală termică proprie;
tâmplărie PVC cu geamuri termopan (7 camere);
instalații electrice și sanitare trase pe poziție;
pereți finisați cu glet și vopsea lavabilă;
acoperiș din tablă;
curte amenajată.
Curtea liberă de aproximativ 185 mp oferă spațiu ideal pentru relaxare, loc de joacă pentru copii și două locuri de parcare.
Avantaje locație:
grădiniță privată la doar 50 m;
Școala Gimnazială Emil Isac la 700 m;
acces rapid către Gară (3 minute);
proximitate față de viitorul mall Rivus (7 minute);
în apropiere de instituții publice, bănci, facultăți și mijloace de transport.
Această proprietate reprezintă alegerea ideală pentru cei care își doresc un stil de viață modern, într-o zonă liniștită, dar bine conectată la facilitățile orașului.
Există posibilitatea de achiziție a ambelor unități locative.
Pentru mai multe detalii sau programarea unei vizionări, echipa TABOO Imobiliare îți stă la dispoziție!
Prețul este de 375.000€. Specificați telefonic codul de oferta / id: P26395
Specificații
Curent
Apa
Canalizare
Gaz
CATV
Acces internet
Centrala proprie
Incalzire pardoseala
Exterior
Vopsea lavabila
PVC
Metal
PVC
Nemobilata
Neutilata
Apometre
Contor gaz
Nemobilat
Curte
Ati vizualizat anuntul: Duplex cu 2 garaje semifinisat de vanzare in cartierul Dambul Rotund
Ești interesat de aceasta proprietate ?
Completeaza datele tale și te vom suna noi!







