379.000€
Casa premium tip duplex cu priveliste la oras cartier Voronet Iris
Cluj-Napoca, Iris
253
P26659
Harta
Trimite acum link-ul unui prieten pe
Caracteristici
- Nr. camere:5
- Suprafata. utila:150 mp
- S. construita:211 mp
- S. teren:315 mp
- Nr. bai:3
- Nr. bucatarii:1
- Nr. parcari:2
- Front stradal:12 m
- Nr. fronturi:1
- An constructie:2026
- Structura rezistenta:Caramida
- Regim inaltime:P+2
- Orientare:Sud
Descriere
Cauti o locuinta ideala pentru tine si pentru familia ta in Cluj-Napoca? Iti doresti o casa intr-o zona linistita, cu curte? TABOO Imobiliare iti propune aceasta casa de vanzare cu 5 camere in zona Iris, Cluj-Napoca.
Terenul casei are o suprafata totala de 315 mp, iar suprafata utila a casei este de 150 mp. Structura cladirii este din caramida, are sistem de incalzire cu centrala proprie, incalzire pardoseala.
Casa de vanzare din zona Iris, Cluj-Napoca a fost construita in anul 2026, are suprafata construita de 211 mp .
Casa de vanzare din Cluj-Napoca este o casa de tip duplex, cu un regim de inaltime Parter + 2 etaje/mansarda.
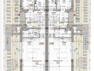
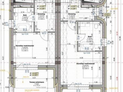
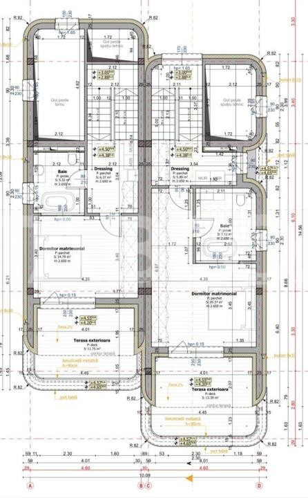
Casa este compartimentata astfel:
~ Parter: camera de zi cu bucatarie, baie, spatiu tehnic, birou, terasa ;
~ Etaj 1: hol, birou, baie, 2 dormitoare, terasa ;
~ Etaj 2: dressing, dormitor matrimonial cu baie proprie, terasa ;
Casa are o curte libera 235 mp cu 2 locuri de parcare, loc pentru zona de joaca a copiilor, 3 terase de relaxare si spatiu de depozitare.
Indicator performanta energetica: Clasa A. Casa se vinde nemobilata.
Zona unde este amplasata casa este foarte bine cotata pe piata imobiliara, fiind situata in apropiere de facultati, insitituii publice, insitutii bancare, scoli si statii pentru mijloace de transport public.
Finisajele interioare sunt de lux:
~ Usa intrare: metal;
~ Tamplarie ferestre: aluminiu, termopan;
~ Podele: nefinisat;
~ Finisaj: semifinisat.
Prețul este de 379.000€. Specificați telefonic codul de oferta / id: P26659
Citește mai mult
Terenul casei are o suprafata totala de 315 mp, iar suprafata utila a casei este de 150 mp. Structura cladirii este din caramida, are sistem de incalzire cu centrala proprie, incalzire pardoseala.
Casa de vanzare din zona Iris, Cluj-Napoca a fost construita in anul 2026, are suprafata construita de 211 mp .
Casa de vanzare din Cluj-Napoca este o casa de tip duplex, cu un regim de inaltime Parter + 2 etaje/mansarda.
Casa este compartimentata astfel:
~ Parter: camera de zi cu bucatarie, baie, spatiu tehnic, birou, terasa ;
~ Etaj 1: hol, birou, baie, 2 dormitoare, terasa ;
~ Etaj 2: dressing, dormitor matrimonial cu baie proprie, terasa ;
Casa are o curte libera 235 mp cu 2 locuri de parcare, loc pentru zona de joaca a copiilor, 3 terase de relaxare si spatiu de depozitare.
Indicator performanta energetica: Clasa A. Casa se vinde nemobilata.
Zona unde este amplasata casa este foarte bine cotata pe piata imobiliara, fiind situata in apropiere de facultati, insitituii publice, insitutii bancare, scoli si statii pentru mijloace de transport public.
Finisajele interioare sunt de lux:
~ Usa intrare: metal;
~ Tamplarie ferestre: aluminiu, termopan;
~ Podele: nefinisat;
~ Finisaj: semifinisat.
Prețul este de 379.000€. Specificați telefonic codul de oferta / id: P26659
Specificații
Curent
Apa
Canalizare
Gaz
CATV
Telefon
Acces internet
Fibra optica
Centrala proprie
Incalzire pardoseala
Exterior
Aluminiu
Metal
Nemobilata
Neutilata
Apometre
Contor gaz
Nemobilat
Curte
Gradina
Ati vizualizat anuntul: Casa premium tip duplex cu priveliste la oras cartier Voronet Iris
Ești interesat de aceasta proprietate ?
Completeaza datele tale și te vom suna noi!







