Aceasta proprietate nu mai este activa
Pentru oferte similare contactati agentul
250.000€
Vanzare duplex premium garaj pentru 2 masini chiar la intrare Tauti
Floresti
404
P25055
Harta
Trimite acum link-ul unui prieten pe
Caracteristici
- Nr. camere:4
- Suprafata. utila:160 mp
- S. construita:200 mp
- S. teren:270 mp
- Nr. bai:2
- Nr. bucatarii:1
- Nr. balcoane:1
- Nr. parcari:2
- Nr. garaje:2
- Front stradal:12 m
- Nr. fronturi:1
- An constructie:2024
- Structura rezistenta:Caramida
- Regim inaltime:D+P+1
- Orientare:Est
Descriere
Doresti sa te muti intr-o zona mai linistita si retrasa? TABOO Imobiliare iti propune aceasta casa de vanzare cu 4 camere in zona Tauti, Floresti. Casa de vanzare din Floresti este o casa de tip duplex, cu un regim de inaltime Demisol + Parter + 1 etaje.
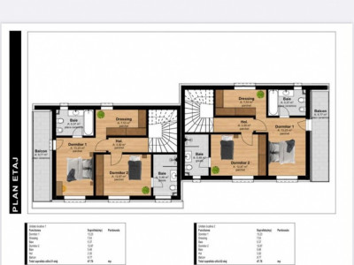
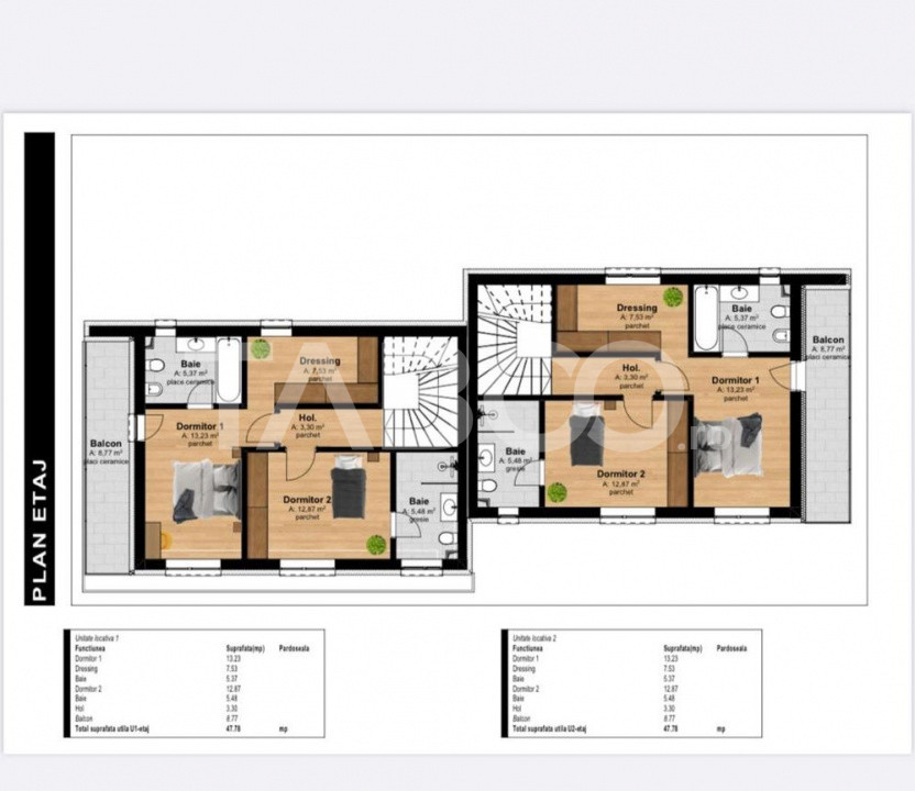
Casa este compartimentata astfel:
~ Demisol: 2 garaje, camera tehnica;
~ Parter: hol, living, baie, bucatarie;
~ Etaj: hol, 3 dormitoare, baie, balcon;
Casa a fost construita in anul 2024, cu o structura din caramida si sistem de incalzire cu centrala proprie, incalzire pardoseala si curent Trifazic permitand folosirea panourilor fotovoltaice.
Suprafata construita a casei este de 200 mp, suprafata utila 160 mp, iar terenul are o suprafata totala de 270 mp. Casa este semifinisata si are o curte libera 190 mp cu 2 locuri de parcare, 2 garaj si suficient loc pentru zona de joaca a copiilor, terasa de relaxare si spatiu de depozitare.
Indicator performanta energetica: Clasa B.
Finisajele:
~ Usa intrare: metal, pvc;
~ Tamplarie ferestre: pvc, termopan;
~ Podele: nefinisat;
~ Izolatii exterior: exterior.
Prețul este de 250.000€. Specificați telefonic codul de oferta / id: P25055
Citește mai mult
Casa este compartimentata astfel:
~ Demisol: 2 garaje, camera tehnica;
~ Parter: hol, living, baie, bucatarie;
~ Etaj: hol, 3 dormitoare, baie, balcon;
Casa a fost construita in anul 2024, cu o structura din caramida si sistem de incalzire cu centrala proprie, incalzire pardoseala si curent Trifazic permitand folosirea panourilor fotovoltaice.
Suprafata construita a casei este de 200 mp, suprafata utila 160 mp, iar terenul are o suprafata totala de 270 mp. Casa este semifinisata si are o curte libera 190 mp cu 2 locuri de parcare, 2 garaj si suficient loc pentru zona de joaca a copiilor, terasa de relaxare si spatiu de depozitare.
Indicator performanta energetica: Clasa B.
Finisajele:
~ Usa intrare: metal, pvc;
~ Tamplarie ferestre: pvc, termopan;
~ Podele: nefinisat;
~ Izolatii exterior: exterior.
Prețul este de 250.000€. Specificați telefonic codul de oferta / id: P25055
Specificații
Curent
Apa
Canalizare
Gaz
Curent trifazic
CATV
Telefon
Acces internet
Fibra optica
Centrala proprie
Incalzire pardoseala
Exterior
Vopsea lavabila
PVC
Metal
PVC
Spatiu depozitare
Nemobilata
Neutilata
Apometre
Contor gaz
Nemobilat
Curte
Ati vizualizat anuntul: Vanzare duplex premium garaj pentru 2 masini chiar la intrare Tauti
Ești interesat de aceasta proprietate ?
Completeaza datele tale și te vom suna noi!














