243.900€
De vanzare - Casa cu 4 camere 2 bai 475mp teren si 2 locuri de parcare
Sibiu, Selimbar
811
P26469
Harta
Trimite acum link-ul unui prieten pe
Caracteristici
- Nr. camere:4
- Suprafata. utila:125 mp
- S. construita:173 mp
- S. teren:475 mp
- Nr. bai:2
- Nr. bucatarii:1
- Nr. balcoane:2
- Nr. parcari:2
- Front stradal:36 m
- Nr. fronturi:1
- An constructie:2025
- Structura rezistenta:Caramida
- Regim inaltime:P+1
Descriere
Cauti o locuinta ideala pentru tine si pentru familia ta in Sibiu? Iti doresti o casa intr-o zona linistita, cu curte? TABOO Imobiliare iti propune aceasta casa de vanzare cu 4 camere in zona Selimbar, Sibiu. Terenul casei are o suprafata totala de 475mp, iar suprafata utila a casei este de 125 mp. Structura cladirii este din caramida, are sistem de incalzire cu centrala proprie si incalzire in pardoseala. Casa de vanzare din zona Selimbar, Sibiu a fost construita in anul 2025 si are suprafata construita de 173 mp.
Casa de vanzare din Sibiu este o casa de tip duplex, cu un regim de inaltime Parter + 1 etaj. Casa are un singur perete comun, al magaziei.
Casa este compartimentata astfel:
~ Parter: hol, living cu bucatarie tip open-space, baie, debara, terasa acoperita, magazie;
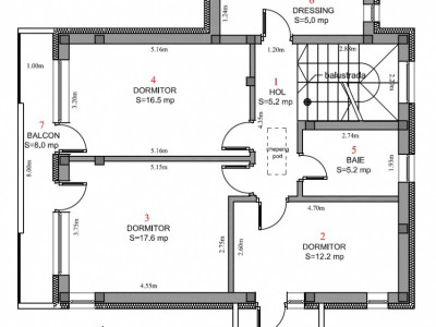
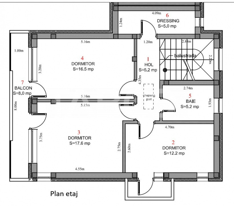
~ Etaj: hol, baie, 2 dormitoare cu balcon comun, dormitor cu dressing si balcon separat;
~ Pod depozitare.
Casa are o curte libera 380mp cu 2 locuri de parcare, loc pentru zona de joaca a copiilor, 1 terasa de relaxare si spatiu de depozitare.
Indicator performanta energetica: Clasa B.
Casa se vinde la alb in interior si la cheie in exterior. Zona unde este amplasata casa este foarte bine cotata pe piata imobiliara.
La cerere se poate vinde si la stadiul de rosu interior, cheie exterior.
Prețul este de 243.900€. Specificați telefonic codul de oferta / id: P26469
Citește mai mult
Casa de vanzare din Sibiu este o casa de tip duplex, cu un regim de inaltime Parter + 1 etaj. Casa are un singur perete comun, al magaziei.
Casa este compartimentata astfel:
~ Parter: hol, living cu bucatarie tip open-space, baie, debara, terasa acoperita, magazie;
~ Etaj: hol, baie, 2 dormitoare cu balcon comun, dormitor cu dressing si balcon separat;
~ Pod depozitare.
Casa are o curte libera 380mp cu 2 locuri de parcare, loc pentru zona de joaca a copiilor, 1 terasa de relaxare si spatiu de depozitare.
Indicator performanta energetica: Clasa B.
Casa se vinde la alb in interior si la cheie in exterior. Zona unde este amplasata casa este foarte bine cotata pe piata imobiliara.
La cerere se poate vinde si la stadiul de rosu interior, cheie exterior.
Prețul este de 243.900€. Specificați telefonic codul de oferta / id: P26469
Specificații
Curent
Apa
Gaz
Fosa septica
Curent trifazic
CATV
Telefon
Acces internet
Fibra optica
Centrala proprie
Incalzire pardoseala
Exterior
PVC
PVC
Spatiu depozitare
Nemobilata
Neutilata
Apometre
Contor gaz
Nemobilat
Ati vizualizat anuntul: De vanzare - Casa cu 4 camere 2 bai 475mp teren si 2 locuri de parcare
Ești interesat de aceasta proprietate ?
Completeaza datele tale și te vom suna noi!
















