Aceasta proprietate nu mai este activa
Pentru oferte similare contactati agentul
188.000€
Casa individuala de vanzare 2 camere teren liber 145 mp Lupeni
Sibiu, Lupeni
579
P23088
Harta
Trimite acum link-ul unui prieten pe
Caracteristici
- Nr. camere:2
- Suprafata. utila:65 mp
- S. construita:78 mp
- S. teren:250 mp
- Nr. bai:1
- Nr. bucatarii:1
- Front stradal:12 m
- Nr. fronturi:1
- An constructie:1965
- An renovare:2015
- Structura rezistenta:Caramida
- Regim inaltime:S+P
Descriere
TABOO Imobiliare iti propune aceasta casa individuala de vanzare, cu 2 camere, in zona linistita, de case, in Lupeni, Sibiu.
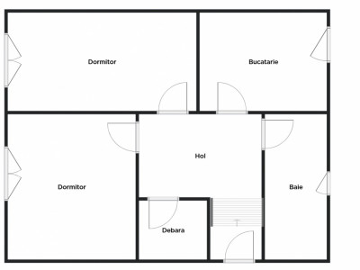
Casa a fost construita in anul 1965, renovata in 2015 si are suprafata construita de 78 mp si o suprafata utila de 65 mp. Este o casa de individuala, cu un regim de inaltime subsol + parter inalt si este compartimentata astfel:
~ Subsol: pivnita cu 2 camere de aproximativ 25 mp in total;
~ Parter: hol, 2 dormitoare de 16, respectiv 14 mp, bucatarie, baie cu geam pentru aerisire si camara;
Terenul casei are o suprafata totala de 250 mp, iar suprafata utila a casei este de 65 mp. Structura cladirii este din caramida si are sistem de incalzire cu centrala proprie (montata in pivnita) si calorifere. Casa este mobilata partial si utilata. Are o curte libera de 145 mp si suficient loc pentru zona de joaca a copiilor, terasa de relaxare si spatiu de depozitare sub forma unui sopron, 125 mp fiind in partea din spate a casei.
Finisajele interioare sunt clasice:
~ Usa intrare: PVC;
~ Usi interioare: lemn;
~ Tamplarie ferestre: PVC, termopan;
~ Podele: parchet, gresie;
~ Finisaj: finisat;
~ Pereti: vopsea lavabila, faianta.
Casa este disponibila imediat pentru vanzare fiind libera de orice sarcina. Locuri de parcare disponibile pe strada, fara plata.
Prețul este de 188.000€. Specificați telefonic codul de oferta / id: P23088
Citește mai mult
Casa a fost construita in anul 1965, renovata in 2015 si are suprafata construita de 78 mp si o suprafata utila de 65 mp. Este o casa de individuala, cu un regim de inaltime subsol + parter inalt si este compartimentata astfel:
~ Subsol: pivnita cu 2 camere de aproximativ 25 mp in total;
~ Parter: hol, 2 dormitoare de 16, respectiv 14 mp, bucatarie, baie cu geam pentru aerisire si camara;
Terenul casei are o suprafata totala de 250 mp, iar suprafata utila a casei este de 65 mp. Structura cladirii este din caramida si are sistem de incalzire cu centrala proprie (montata in pivnita) si calorifere. Casa este mobilata partial si utilata. Are o curte libera de 145 mp si suficient loc pentru zona de joaca a copiilor, terasa de relaxare si spatiu de depozitare sub forma unui sopron, 125 mp fiind in partea din spate a casei.
Finisajele interioare sunt clasice:
~ Usa intrare: PVC;
~ Usi interioare: lemn;
~ Tamplarie ferestre: PVC, termopan;
~ Podele: parchet, gresie;
~ Finisaj: finisat;
~ Pereti: vopsea lavabila, faianta.
Casa este disponibila imediat pentru vanzare fiind libera de orice sarcina. Locuri de parcare disponibile pe strada, fara plata.
Prețul este de 188.000€. Specificați telefonic codul de oferta / id: P23088
Specificații
Curent
Apa
Canalizare
Gaz
CATV
Acces internet
Centrala proprie
Calorifere
Exterior
Vopsea lavabila
Faianta
Parchet
Gresie
Finisat
PVC
PVC
Lemn
Pivnita
Spatiu depozitare
Anexe
Partial mobilata
Utilata
Apometre
Contor gaz
Partial
Curte
Gradina
TABOO.ro
0785.822.822
Ati vizualizat anuntul: Casa individuala de vanzare 2 camere teren liber 145 mp Lupeni
Ești interesat de aceasta proprietate ?
Completeaza datele tale și te vom suna noi!












