62.000€
Garsoniera decomandata de vanzare balcon ideala investitie
Sibiu, Calea Surii Mici
8
P26245
Harta
Trimite acum link-ul unui prieten pe
Caracteristici
- Nr. camere:1
- Suprafata utila:25 mp
- Etaj:Parter
- Compartimentare:Decomandat
- Tip imobil:Bloc
- Regim inaltime:P+4
- Nr. bai:1
- S. construita:35 mp
- Confort:1
- Nr. bucatarii:1
- Nr. balcoane:1
- An constructie:2017
- An renovare:2022
- Structura:Caramida
- Orientare:Sud
Descriere
Garsoniera de vanzare, decomandata, 25 mp, zona Calea Surii Mici, Sibiu. Garsoniera in zona de Industrial Vest, aproape de fabrici si iesirea pe autostrada. Este pretabila pentru investitie, pentru cineva care cauta un venit pasiv. Este ideala si pentru cei la inceput de drum, pentru o persoana singura sau un cuplu.
Avantaje majore ale acestei garsoniere:
• Pretabil investitie sigura
• Locatie ferita de aglomeratie
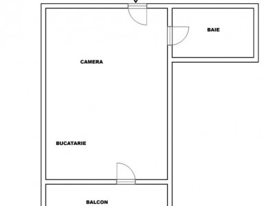
TABOO Imobiliare propune o garsoniera de vanzare cu 1 camere, decomandata, situata in localitatea Sibiu, zona Calea Surii Mici, aflata la parter intr -un imobil tip bloc cu regim de inaltime pe Parter + 4 Etaje; anul constructiei 2017, structura caramida. Suprafata utila de 25 mp + balcon de 5 mp.
Garsoniera este structurata astfel:
• Camera cu canapea extensibila;
• Bucatarie cu loc de luat masa ( care se poate separa de camera prin perete de sticla );
• Baie cu cada;
• Balcon;
Finisajele interioare sunt moderne
• Usi interioare: celulare;
• Tamplarie ferestre: pvc, termopan;
• Pereti: vopsea lavabila, faianta;
• Podele: parchet, gresie.
Utilitati si dotari:
• Bucatarie: mobilata, utilata;
• Mobilat: complet;
• Utilitati: curent electric, apa, canalizare, gaz, catv, telefon, acces internet, fibra optica;
• Izolatii: exterior, bloc izolat termic;
• Contorizare: apometre, contor gaz, contor curent electric, contorizare separata;
• Caracteristici bloc: interfon, lift, acoperis.
Garsoniera se vinde mobilata si utilat cu: plita pe gaz, cuptor, hota, masina de spalat rufe, frigider cu congelator.
Incalzirea se realizeaza prin centrala proprie, calorifere.
Se accepta ca si modalitate de plata surse proprii sau credit bancar.
Prețul este de 62.000€. Specificați telefonic codul de oferta / id: P26245
Citește mai mult
Avantaje majore ale acestei garsoniere:
• Pretabil investitie sigura
• Locatie ferita de aglomeratie
TABOO Imobiliare propune o garsoniera de vanzare cu 1 camere, decomandata, situata in localitatea Sibiu, zona Calea Surii Mici, aflata la parter intr -un imobil tip bloc cu regim de inaltime pe Parter + 4 Etaje; anul constructiei 2017, structura caramida. Suprafata utila de 25 mp + balcon de 5 mp.
Garsoniera este structurata astfel:
• Camera cu canapea extensibila;
• Bucatarie cu loc de luat masa ( care se poate separa de camera prin perete de sticla );
• Baie cu cada;
• Balcon;
Finisajele interioare sunt moderne
• Usi interioare: celulare;
• Tamplarie ferestre: pvc, termopan;
• Pereti: vopsea lavabila, faianta;
• Podele: parchet, gresie.
Utilitati si dotari:
• Bucatarie: mobilata, utilata;
• Mobilat: complet;
• Utilitati: curent electric, apa, canalizare, gaz, catv, telefon, acces internet, fibra optica;
• Izolatii: exterior, bloc izolat termic;
• Contorizare: apometre, contor gaz, contor curent electric, contorizare separata;
• Caracteristici bloc: interfon, lift, acoperis.
Garsoniera se vinde mobilata si utilat cu: plita pe gaz, cuptor, hota, masina de spalat rufe, frigider cu congelator.
Incalzirea se realizeaza prin centrala proprie, calorifere.
Se accepta ca si modalitate de plata surse proprii sau credit bancar.
Prețul este de 62.000€. Specificați telefonic codul de oferta / id: P26245
Specificații
Curent
Apa
Canalizare
Gaz
CATV
Telefon
Acces internet
Fibra optica
Centrala proprie
Calorifere
Exterior
Bloc izolat termic
Vopsea lavabila
Faianta
Parchet
Gresie
Finisat
PVC
Metal
Celulare
Mobilata
Utilata
Apometre
Contor gaz
Complet
Interfon
Lift
Acoperis
Ati vizualizat anuntul: Garsoniera decomandata de vanzare balcon ideala investitie
Ești interesat de aceasta proprietate ?
Completeaza datele tale și te vom suna noi!








