72.700€
Garsoniera decomandata de vanzare cu lift si pivnita Colinei Sibiu
Sibiu, Tilisca
1191
P25190
Harta
Trimite acum link-ul unui prieten pe
Caracteristici
- Nr. camere:1
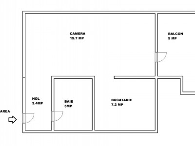
- Suprafata utila:35 mp
- Etaj:Etaj 2
- Compartimentare:Decomandat
- Tip imobil:Bloc
- Regim inaltime:P+3
- Nr. bai:1
- S. construita:51 mp
- Confort:1
- Nr. bucatarii:1
- Nr. balcoane:1
- An constructie:2008
- An renovare:2020
- Structura:Caramida
- Orientare:Sud
Descriere
Garsoniera cu o camera de vanzare, decomandata, 35 mp, zona Tilisca, Sibiu.
Avantaje majore ale acestei garsoniere:
• Bloc nou cu lift
• Pivnita de depozitare de aproximativ 2 mp
• Pozitionarea este foarte buna.
• Zona retrasa cu oameni linistiti, in imediata apropiere al noului parc Belvedere.
TABOO Imobiliare propune o garsoniera de vanzare cu o camera, decomandata, situata in localitatea Sibiu, zona Tilisca, aflata la etajul 2 intr -un imobil tip bloc cu regim de inaltime pe Parter + 3 Etaje; anul constructiei 2008, structura caramida. Suprafata utila de 35mp + balcon de 9 mp.
Garsoniera este structurata astfel:
• Hol;
• Bucatarie;
• Baie;
• Living cu balcon;
• Depozitare la subsolul blocului
Finisajele interioare sunt clasice:
• Usa intrare: metal;
• Usi interioare: celulare;
• Tamplarie ferestre: pvc, termopan;
• Pereti: vopsea lavabila, faianta;
• Podele: parchet, gresie.
Utilitati si dotari:
• Bucatarie: mobilata, utilata;
• Mobilat: complet;
• Utilitati: curent electric, apa, canalizare, gaz, catv, telefon, acces internet, fibra optica;
• Izolatii: exterior, bloc izolat termic;
• Contorizare: apometre, contor gaz, contor curent electric, contorizare separata;
• Caracteristici bloc: interfon, lift, acoperis.
Garsoniera se vinde mobilata si utilata cu: plita electrica, cuptor, hota, masina de spalat rufe, masina de spalat vase, frigider cu congelator.
Incalzirea se realizeaza prin centrala proprie, calorifere si dispune de sistem de climatizare (A.C.).
Se accepta ca si modalitate de plata surse proprii sau credit bancar.
Prețul este de 72.700€. Specificați telefonic codul de oferta / id: P25190
Citește mai mult
Avantaje majore ale acestei garsoniere:
• Bloc nou cu lift
• Pivnita de depozitare de aproximativ 2 mp
• Pozitionarea este foarte buna.
• Zona retrasa cu oameni linistiti, in imediata apropiere al noului parc Belvedere.
TABOO Imobiliare propune o garsoniera de vanzare cu o camera, decomandata, situata in localitatea Sibiu, zona Tilisca, aflata la etajul 2 intr -un imobil tip bloc cu regim de inaltime pe Parter + 3 Etaje; anul constructiei 2008, structura caramida. Suprafata utila de 35mp + balcon de 9 mp.
Garsoniera este structurata astfel:
• Hol;
• Bucatarie;
• Baie;
• Living cu balcon;
• Depozitare la subsolul blocului
Finisajele interioare sunt clasice:
• Usa intrare: metal;
• Usi interioare: celulare;
• Tamplarie ferestre: pvc, termopan;
• Pereti: vopsea lavabila, faianta;
• Podele: parchet, gresie.
Utilitati si dotari:
• Bucatarie: mobilata, utilata;
• Mobilat: complet;
• Utilitati: curent electric, apa, canalizare, gaz, catv, telefon, acces internet, fibra optica;
• Izolatii: exterior, bloc izolat termic;
• Contorizare: apometre, contor gaz, contor curent electric, contorizare separata;
• Caracteristici bloc: interfon, lift, acoperis.
Garsoniera se vinde mobilata si utilata cu: plita electrica, cuptor, hota, masina de spalat rufe, masina de spalat vase, frigider cu congelator.
Incalzirea se realizeaza prin centrala proprie, calorifere si dispune de sistem de climatizare (A.C.).
Se accepta ca si modalitate de plata surse proprii sau credit bancar.
Prețul este de 72.700€. Specificați telefonic codul de oferta / id: P25190
Specificații
Curent
Apa
Canalizare
Gaz
CATV
Telefon
Acces internet
Fibra optica
Centrala proprie
Calorifere
Aer conditionat
Exterior
Bloc izolat termic
Vopsea lavabila
Faianta
Parchet
Gresie
Finisat
PVC
Metal
Celulare
Pivnita
Mobilata
Utilata
Apometre
Contor gaz
Complet
Interfon
Lift
Acoperis
Ati vizualizat anuntul: Garsoniera decomandata de vanzare cu lift si pivnita Colinei Sibiu
Ești interesat de aceasta proprietate ?
Completeaza datele tale și te vom suna noi!














