Aceasta proprietate nu mai este activa
Pentru oferte similare contactati agentul
284.900€
De vanzare penthouse cu terasa de 90 mp semicentral zona Parc Armatura
Cluj-Napoca, Iris
484
P25412
Harta
Trimite acum link-ul unui prieten pe
Caracteristici
- Nr. camere:4
- Suprafata utila:98 mp
- Etaj:Etaj 2
- Compartimentare:Semidecomandat
- Tip imobil:Bloc
- Regim inaltime:D+P+3
- Nr. bai:2
- S. construita:207 mp
- Confort:1
- Nr. bucatarii:1
- Nr. garaje:1
- Pret garaj:15.000€
- An constructie:2024
- Structura:Caramida
- Orientare:Sud-Est
Descriere
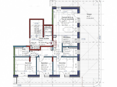
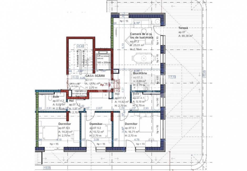
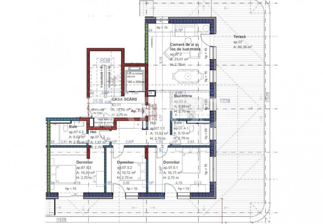
Apartament 4 camere de vanzare, semidecomandat, 98 mp, zona Iris, Cluj-Napoca.
Avantaje majore ale acestui apartament: -
- terasa de 90 mp;
TABOO Imobiliare propune un apartament de vanzare cu 4 camere, semidecomandat, situat in localitatea Cluj-Napoca, zona Iris, aflat la etajul 2 intr -un imobil tip bloc cu regim de inaltime pe Parter + 3 Etaje; anul constructiei 2024, structura caramida. Suprafata utila de 98 mp + terasa de 90 mp.
Apartamentul este structurat astfel:
• Hol;
• Bucatarie;
• 2 bai;
• Living cu iesire pe terasa;
• 3 dormitoare cu iesire pe terasa;
• Hol intermediar;
Finisajele interioare sunt semifinisate:
• Usa intrare: metal;
• Tamplarie ferestre: pvc, termopan;
• Pereti: vopsea lavabila;
Utilitati si dotari:
• Bucatarie: nemobilata, neutilata;
• Mobilat: nemobilat;
• Utilitati: curent electric, apa, canalizare, gaz, catv, telefon, acces internet, fibra optica;
• Izolatii: exterior, bloc izolat termic;
• Contorizare: apometre, contor gaz, contor curent electric;
• Caracteristici bloc: videointerfon, supraveghere video, lift, gradina.
Apartamentul se vinde la stadiul de semifinisat!
Locul de parcare se vinde la pret separat!
Incalzirea se realizeaza prin centrala proprie, incalzire pardoseala.
Se accepta ca si modalitate de plata surse proprii sau credit bancar.
Prețul este de 284.900€. Specificați telefonic codul de oferta / id: P25412
Citește mai mult
Avantaje majore ale acestui apartament: -
- terasa de 90 mp;
TABOO Imobiliare propune un apartament de vanzare cu 4 camere, semidecomandat, situat in localitatea Cluj-Napoca, zona Iris, aflat la etajul 2 intr -un imobil tip bloc cu regim de inaltime pe Parter + 3 Etaje; anul constructiei 2024, structura caramida. Suprafata utila de 98 mp + terasa de 90 mp.
Apartamentul este structurat astfel:
• Hol;
• Bucatarie;
• 2 bai;
• Living cu iesire pe terasa;
• 3 dormitoare cu iesire pe terasa;
• Hol intermediar;
Finisajele interioare sunt semifinisate:
• Usa intrare: metal;
• Tamplarie ferestre: pvc, termopan;
• Pereti: vopsea lavabila;
Utilitati si dotari:
• Bucatarie: nemobilata, neutilata;
• Mobilat: nemobilat;
• Utilitati: curent electric, apa, canalizare, gaz, catv, telefon, acces internet, fibra optica;
• Izolatii: exterior, bloc izolat termic;
• Contorizare: apometre, contor gaz, contor curent electric;
• Caracteristici bloc: videointerfon, supraveghere video, lift, gradina.
Apartamentul se vinde la stadiul de semifinisat!
Locul de parcare se vinde la pret separat!
Incalzirea se realizeaza prin centrala proprie, incalzire pardoseala.
Se accepta ca si modalitate de plata surse proprii sau credit bancar.
Prețul este de 284.900€. Specificați telefonic codul de oferta / id: P25412
Specificații
Curent
Apa
Canalizare
Gaz
CATV
Telefon
Acces internet
Fibra optica
Centrala proprie
Incalzire pardoseala
Exterior
Bloc izolat termic
Vopsea lavabila
PVC
Metal
Terasa
Nemobilata
Neutilata
Apometre
Contor gaz
Nemobilat
Videointerfon
Lift
Gradina
Ati vizualizat anuntul: De vanzare penthouse cu terasa de 90 mp semicentral zona Parc Armatura
Ești interesat de aceasta proprietate ?
Completeaza datele tale și te vom suna noi!



