1.500€
Spatiu de birouri de inchiriat 150 mp utili 5 parcari zona Valea Aurie
Sibiu, Calea Poplacii
6
P25478
Harta
Trimite acum link-ul unui prieten pe
Caracteristici
- Nr. camere:5
- Suprafata utila:150 mp
- S. construita:180 mp
- S. curte:600 mp
- Compartimentare:Compartimentat
- Clasificare:A
- Etaj:Etaj 1
- Nr. bai:1
- Nr. parcari:5
- An constructie:2010
- An renovare:2023
- Structura rezistenta:Caramida
- Regim inaltime:P+2+M
Descriere
TABOO Imobiliare iti propune acest spatiu birou de inchiriat in Sibiu cu 5 incaperi situat in zona Calea Poplacii, Valea Aurie.
Aceasta cladire unica imbina functionalitatea unui spatiu de birouri modern cu confortul si relaxarea unui mediu de lucru prietenos si inspirational. Este perfecta pentru companii care pun accent pe productivitate, imagine si bunastarea echipei.
Imobilul este superfinisat la cheie, cu materiale de calitate si compartimentare eficienta, fiind pregatit pentru mutare imediata. Se preteaza excelent pentru firme din IT, consultanta, marketing, arhitectura, call center sau chiar sediu pentru afaceri cu activitate hibrida.
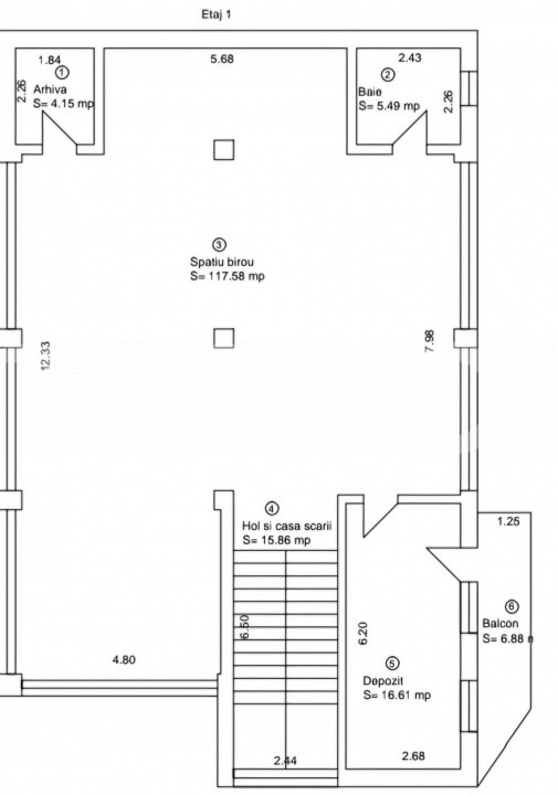
Spatiul se afla la etajul 1 al unei cladiri si beneficiaza de 150 mp utili.
Intreaga cladire este destinata activitatilor de birou si este compartimentata astfel:
Parter – zona dedicata relaxarii si activitatilor de echipa:
• Spatiu deschis, foarte generos de 113 mp care poate fi amenajat sau compartimentat dupa necesitati cat si alte 3 incaperi deja delimitate: doua spatii de depozitare, arhiva si o baie.
• Acces direct catre curtea interioara si gradina
Etaj 1 si 2 – birouri open-space:
• Spatii largi, bine iluminate, ideale pentru organizare flexibila a echipelor
• Fiecare etaj este dotat cu baie proprie si chicineta pentru confortul zilnic
• Finisaje moderne, pardoseli calde, lumina naturala din abundenta
Mansarda – spatiu versatil si elegant:
• Ideal pentru birou executiv, zona de management, sala de sedinte sau activitati speciale
• Include baie, logie cu priveliste si camera mare (peste 87 mp)
• Atmosfera intima, ideala pentru concentrare si discutii de strategie
Curte si Gradina– un adevarat avantaj:
• 15 locuri de parcare in curtea privata
• Gradina amenajata cu zona verde, foisor acoperit, gratar si crama rustica – loc perfect pentru relaxare, team-building-uri sau mici evenimente corporate
• Posibilitate de amenajare suplimentara outdoor (zona fumat, biciclete, lounge exterior etc.)
Eficienta energetica si dotari:
• Panouri fotovoltaice pentru apa calda si eficienta energetica crescuta
• Incalzire centralizata pe gaz si sistem de climatizare
• Retea electrica, internet (fibra optica), prize si infrastructura IT pregatita
• Cladire bine izolata, cu cheltuieli minime de intretinere
• Acces securizat, finisaje premium, iluminat natural excelent
Spatiul se inchiriaza de pe persoana fizica si astfel nu se percepe taxa TVA!
Prețul este de 1.500€. Specificați telefonic codul de oferta / id: P25478
Citește mai mult
Aceasta cladire unica imbina functionalitatea unui spatiu de birouri modern cu confortul si relaxarea unui mediu de lucru prietenos si inspirational. Este perfecta pentru companii care pun accent pe productivitate, imagine si bunastarea echipei.
Imobilul este superfinisat la cheie, cu materiale de calitate si compartimentare eficienta, fiind pregatit pentru mutare imediata. Se preteaza excelent pentru firme din IT, consultanta, marketing, arhitectura, call center sau chiar sediu pentru afaceri cu activitate hibrida.
Spatiul se afla la etajul 1 al unei cladiri si beneficiaza de 150 mp utili.
Intreaga cladire este destinata activitatilor de birou si este compartimentata astfel:
Parter – zona dedicata relaxarii si activitatilor de echipa:
• Spatiu deschis, foarte generos de 113 mp care poate fi amenajat sau compartimentat dupa necesitati cat si alte 3 incaperi deja delimitate: doua spatii de depozitare, arhiva si o baie.
• Acces direct catre curtea interioara si gradina
Etaj 1 si 2 – birouri open-space:
• Spatii largi, bine iluminate, ideale pentru organizare flexibila a echipelor
• Fiecare etaj este dotat cu baie proprie si chicineta pentru confortul zilnic
• Finisaje moderne, pardoseli calde, lumina naturala din abundenta
Mansarda – spatiu versatil si elegant:
• Ideal pentru birou executiv, zona de management, sala de sedinte sau activitati speciale
• Include baie, logie cu priveliste si camera mare (peste 87 mp)
• Atmosfera intima, ideala pentru concentrare si discutii de strategie
Curte si Gradina– un adevarat avantaj:
• 15 locuri de parcare in curtea privata
• Gradina amenajata cu zona verde, foisor acoperit, gratar si crama rustica – loc perfect pentru relaxare, team-building-uri sau mici evenimente corporate
• Posibilitate de amenajare suplimentara outdoor (zona fumat, biciclete, lounge exterior etc.)
Eficienta energetica si dotari:
• Panouri fotovoltaice pentru apa calda si eficienta energetica crescuta
• Incalzire centralizata pe gaz si sistem de climatizare
• Retea electrica, internet (fibra optica), prize si infrastructura IT pregatita
• Cladire bine izolata, cu cheltuieli minime de intretinere
• Acces securizat, finisaje premium, iluminat natural excelent
Spatiul se inchiriaza de pe persoana fizica si astfel nu se percepe taxa TVA!
Prețul este de 1.500€. Specificați telefonic codul de oferta / id: P25478
Specificații
Curent
Apa
Canalizare
Gaz
Curent trifazic
CATV
Telefon
Acces internet
Fibra optica
Centrala proprie
Calorifere
Aer conditionat
Exterior
Bloc izolat termic
Vopsea lavabila
Faianta
Parchet
Gresie
Renovat
PVC
Lampi
Spoturi
Exterior cladire
Lumina naturala
Crama
Spatiu depozitare
Anexe
Parcare proprie
Spatiu verde amenajat
Apometre
Contor gaz
Nemobilat
Curte
Ati vizualizat anuntul: Spatiu de birouri de inchiriat 150 mp utili 5 parcari zona Valea Aurie
Ești interesat de aceasta proprietate ?
Completeaza datele tale și te vom suna noi!










