Aceasta proprietate nu mai este activa
Pentru oferte similare contactati agentul
400€
Apartament prima inchiriere 2 camere si balcon lift parcare Magnolia
Sibiu, Calea Surii Mici
612
P25934
Harta
Trimite acum link-ul unui prieten pe
Caracteristici
- Nr. camere:2
- Suprafata utila:40 mp
- Etaj:Etaj 3
- Compartimentare:Decomandat
- Tip imobil:Bloc
- Regim inaltime:P+4
- Nr. bai:1
- S. construita:55 mp
- Confort:1
- Nr. bucatarii:1
- Nr. balcoane:1
- Nr. parcari:1
- An constructie:2015
- An renovare:2025
- Structura:Caramida
- Orientare:Sud
Descriere
Apartament 2 camere de inchiriat, decomandat, 38 mp, zona Calea Surii Mici, Sibiu. Apartamentul la prima inchiriere cu mobilier si electrocasnice noi.
Ai un job in zona Industriala Vest si nu mai suporti traficul infernal dintre casa si locul de munca!?
Apartament cu 2 camere de inchiriat in zona Calea Surii Mici, intr-o zona linistita, dar bine conectata la oras. Zona Industriala Vest este aproape, iar magazinele sunt chiar langa bloc. Un loc echilibrat, ideal pentru confort si acces rapid la tot ce conteaza.
Avantaje majore ale acestui apartament:
• Un loc de parcare inclus in pret
• Locatie ferita de aglomeratie
• Etaj intermediar si bloc cu lift
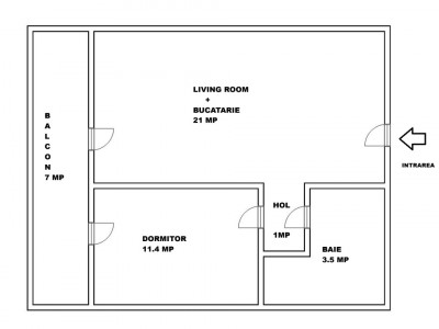
TABOO Imobiliare propune un apartament de inchiriat cu 2 camere, decomandat, situat in localitatea Sibiu, zona Calea Surii Mici, aflat la etajul 3 intr -un imobil tip bloc cu regim de inaltime pe Parter + 4 Etaje; anul constructiei 2015, structura caramida. Suprafata utila de 40 mp + balcon deschis de 7 mp.
Apartamentul este structurat astfel:
• Living cu bucatarie tip open-space;
• Hol;
• Baie cu cada;
• Dormitor;
• Balcon cu iesire din ambele camere;
Finisajele interioare sunt moderne:
• Usa intrare: metal;
• Usi interioare: celulare;
• Tamplarie ferestre: pvc, termopan;
• Pereti: vopsea lavabila, faianta;
• Podele: parchet, gresie.
Utilitati si dotari:
• Bucatarie: mobilata si utilata
• Mobilat: mobilat;
• Utilitati: curent electric, apa, canalizare, gaz, catv, telefon, acces internet, fibra optica;
• Izolatii: exterior, bloc izolat termic;
• Contorizare: apometre, contor gaz, contor curent electric, contorizare separata;
• Caracteristici bloc: interfon, lift, acoperis.
Apartamentul se inchiriaza mobilat si utilat cu : masina de spalat rufe cu uscator, frigider cu congelator, plita pe gaz, cuptor electric, hota, cuptor cu microunde, toaster, cafetiere, televizoare.
Incalzirea se realizeaza prin centrala proprie, calorifere.
Pentru a se inchiria acest apartament se achita proprietarului chiria + o luna garantie.
Prețul este de 400€. Specificați telefonic codul de oferta / id: P25934
Citește mai mult
Ai un job in zona Industriala Vest si nu mai suporti traficul infernal dintre casa si locul de munca!?
Apartament cu 2 camere de inchiriat in zona Calea Surii Mici, intr-o zona linistita, dar bine conectata la oras. Zona Industriala Vest este aproape, iar magazinele sunt chiar langa bloc. Un loc echilibrat, ideal pentru confort si acces rapid la tot ce conteaza.
Avantaje majore ale acestui apartament:
• Un loc de parcare inclus in pret
• Locatie ferita de aglomeratie
• Etaj intermediar si bloc cu lift
TABOO Imobiliare propune un apartament de inchiriat cu 2 camere, decomandat, situat in localitatea Sibiu, zona Calea Surii Mici, aflat la etajul 3 intr -un imobil tip bloc cu regim de inaltime pe Parter + 4 Etaje; anul constructiei 2015, structura caramida. Suprafata utila de 40 mp + balcon deschis de 7 mp.
Apartamentul este structurat astfel:
• Living cu bucatarie tip open-space;
• Hol;
• Baie cu cada;
• Dormitor;
• Balcon cu iesire din ambele camere;
Finisajele interioare sunt moderne:
• Usa intrare: metal;
• Usi interioare: celulare;
• Tamplarie ferestre: pvc, termopan;
• Pereti: vopsea lavabila, faianta;
• Podele: parchet, gresie.
Utilitati si dotari:
• Bucatarie: mobilata si utilata
• Mobilat: mobilat;
• Utilitati: curent electric, apa, canalizare, gaz, catv, telefon, acces internet, fibra optica;
• Izolatii: exterior, bloc izolat termic;
• Contorizare: apometre, contor gaz, contor curent electric, contorizare separata;
• Caracteristici bloc: interfon, lift, acoperis.
Apartamentul se inchiriaza mobilat si utilat cu : masina de spalat rufe cu uscator, frigider cu congelator, plita pe gaz, cuptor electric, hota, cuptor cu microunde, toaster, cafetiere, televizoare.
Incalzirea se realizeaza prin centrala proprie, calorifere.
Pentru a se inchiria acest apartament se achita proprietarului chiria + o luna garantie.
Prețul este de 400€. Specificați telefonic codul de oferta / id: P25934
Specificații
Curent
Apa
Canalizare
Gaz
CATV
Telefon
Acces internet
Fibra optica
Centrala proprie
Calorifere
Exterior
Bloc izolat termic
Vopsea lavabila
Faianta
Parchet
Gresie
PVC
Metal
Celulare
Mobilata
Utilata
Apometre
Contor gaz
Complet
Interfon
Lift
Acoperis
Ati vizualizat anuntul: Apartament prima inchiriere 2 camere si balcon lift parcare Magnolia
Ești interesat de aceasta proprietate ?
Completeaza datele tale și te vom suna noi!















