Aceasta proprietate nu mai este activa
Pentru oferte similare contactati agentul
313.720€ + TVA
De vanzare apartament cu 3 camere semifinisat Andrei Muresanu
Cluj-Napoca, Andrei Muresanu
409
P25092
Harta
Trimite acum link-ul unui prieten pe
Caracteristici
- Nr. camere:3
- Suprafata utila:92 mp
- Etaj:Etaj 1
- Compartimentare:Semidecomandat
- Tip imobil:Bloc
- Regim inaltime:S+D+P+5
- Nr. bai:2
- S. construita:115 mp
- Confort:1
- Nr. bucatarii:1
- Nr. balcoane:1
- Nr. garaje:1
- Pret garaj:20.000€<span> + TVA</span>
- An constructie:2025
- Structura:Caramida
- Orientare:Sud-Vest
Descriere
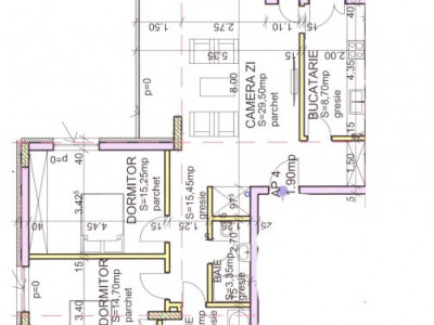
Apartament 3 camere de vanzare, decomandat, 92 mp, Andrei Muresanu, Cluj-Napoca.
TABOO Imobiliare propune un apartament de vanzare cu 3 camere, decomandat, situat in localitatea Cluj-Napoca, zona Andrei Muresanu, aflat la etajul 1 intr -un imobil tip bloc cu regim de inaltime pe S+D+P + 7 Etaje; anul constructiei 2025, structura caramida. Suprafata utila de 92mp + balcon de 5 mp.
Apartamentul este structurat astfel:
• Hol;
• Bucatarie cu iesire pe balcon
• Living cu iesire pe balcon
• 2 Bai;
• 2 Dormitoare
Finisajele interioare sunt urmatoarele:
• Usa intrare: metal;
• Tamplarie ferestre: pvc, termopan;
• Pereti: vopsea lavabila;
• Podele: nefinisat.
Utilitati si dotari:
• Bucatarie: nemobilata, neutilata;
• Mobilat: nemobilat;
• Utilitati: curent electric, apa, canalizare, gaz, catv, telefon, acces internet;
• Izolatii: exterior, bloc izolat termic;
• Contorizare: apometre, contor gaz, contor curent electric;
• Caracteristici bloc: interfon, supraveghere video, lift.
Apartamentul se vinde semifinisat.
Parcarea subterana se vinde separat.
Incalzirea se realizeaza prin centrala imobil, incalzire pardoseala.
Se accepta ca si modalitate de plata surse proprii sau credit bancar.
Prețul este de 313.720€ + TVA. Specificați telefonic codul de oferta / id: P25092
Citește mai mult
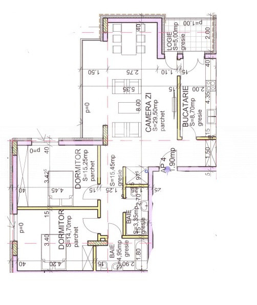
TABOO Imobiliare propune un apartament de vanzare cu 3 camere, decomandat, situat in localitatea Cluj-Napoca, zona Andrei Muresanu, aflat la etajul 1 intr -un imobil tip bloc cu regim de inaltime pe S+D+P + 7 Etaje; anul constructiei 2025, structura caramida. Suprafata utila de 92mp + balcon de 5 mp.
Apartamentul este structurat astfel:
• Hol;
• Bucatarie cu iesire pe balcon
• Living cu iesire pe balcon
• 2 Bai;
• 2 Dormitoare
Finisajele interioare sunt urmatoarele:
• Usa intrare: metal;
• Tamplarie ferestre: pvc, termopan;
• Pereti: vopsea lavabila;
• Podele: nefinisat.
Utilitati si dotari:
• Bucatarie: nemobilata, neutilata;
• Mobilat: nemobilat;
• Utilitati: curent electric, apa, canalizare, gaz, catv, telefon, acces internet;
• Izolatii: exterior, bloc izolat termic;
• Contorizare: apometre, contor gaz, contor curent electric;
• Caracteristici bloc: interfon, supraveghere video, lift.
Apartamentul se vinde semifinisat.
Parcarea subterana se vinde separat.
Incalzirea se realizeaza prin centrala imobil, incalzire pardoseala.
Se accepta ca si modalitate de plata surse proprii sau credit bancar.
Prețul este de 313.720€ + TVA. Specificați telefonic codul de oferta / id: P25092
Specificații
Curent
Apa
Canalizare
Gaz
CATV
Telefon
Acces internet
Centrala imobil
Incalzire pardoseala
Exterior
Bloc izolat termic
Vopsea lavabila
PVC
Metal
Nemobilata
Neutilata
Apometre
Contor gaz
Nemobilat
Interfon
Lift
Ati vizualizat anuntul: De vanzare apartament cu 3 camere semifinisat Andrei Muresanu
Ești interesat de aceasta proprietate ?
Completeaza datele tale și te vom suna noi!





