139.990€
Apartament de vazare 2 camere cu gradina proprie de 86 mp si parcare
Sibiu, Calea Cisnadiei - Arhitectilor
1820
P25229
Video
Harta
Trimite acum link-ul unui prieten pe
Caracteristici
- Nr. camere:2
- Suprafata utila:48 mp
- Etaj:Parter
- Compartimentare:Decomandat
- Tip imobil:Bloc
- Regim inaltime:P+2
- Nr. bai:1
- S. construita:64 mp
- Confort:1
- Nr. bucatarii:1
- Nr. balcoane:1
- Nr. parcari:1
- An constructie:2015
- An renovare:2022
- Structura:Caramida
- Orientare:Sud
Descriere
Apartament 2 camere de vanzare, decomandat, 48 mp, zona Calea Cisnadiei - Arhitectilor, Sibiu.
Ceva bun de vanzare apare rar. Oportunitatea de a numi acest loc ' acasa' o poti avea de cand deschizi usa. Eleganta, utilitatea, bunul gust, seriozitatea proprietarilor cu care au tratat acest spatiu, este uimitoare. Apartamentul unde te vei simti bine, ca intr-o comunitate, ca intr-o familie de oameni tineri si frumosi, cu visuri si aspiratii la fel ca ale tale. Te vei simti ca acasa, iti promit.
Avantaje majore ale acestui apartament:
• Apartament nelocuit, cu toate obiectele noi si gradina proprie.
• Un loc de parcare inclus in pret
• Parcare extra pentru vizitatori
• Locatie ferita de aglomeratie
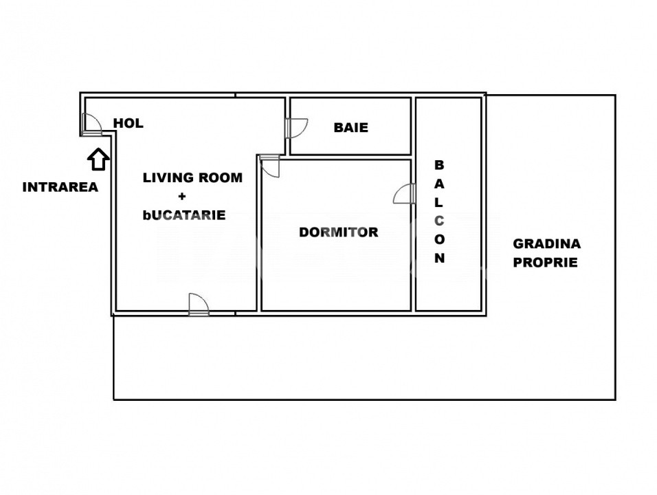
TABOO Imobiliare propune un apartament de vanzare cu 2 camere, decomandat, situat in localitatea Sibiu, zona Calea Cisnadiei - Arhitectilor, aflat la etajul parter inalt intr -un imobil tip bloc cu regim de inaltime pe Parter + 2 Etaje; anul constructiei 2015, structura caramida. Suprafata utila de 48 mp + balcon de 6 mp si gradina proprie de 86 mp.
Apartamentul este structurat astfel:
• Hol la intrare de compartimentare;
• Living room cu bucatariedeschisa si cu iesire in gradina privata;
• Baie cu cabina de dus si geam de aerisire naturala;
• Dormitor cu iesire pe balcon;
Finisajele interioare sunt moderne:
• Usa intrare: metal;
• Usi interioare: celulare;
• Tamplarie ferestre: pvc, termopan;
• Pereti: vopsea lavabila, faianta;
• Podele: parchet, gresie.
Utilitati si dotari:
• Bucatarie: mobilata, utilata;
• Mobilat: complet;
• Utilitati: curent electric, apa, canalizare, gaz, catv, telefon, acces internet, fibra optica;
• Izolatii: exterior, bloc izolat termic;
• Contorizare: apometre, contor gaz, contor curent electric, contorizare separata;
• Caracteristici bloc: interfon, acoperis, gradina.
Apartamentul se vinde mobilat si utilat cu: plita electrica, cuptor, hota, masina de spalat rufe, masina de spalat vase, frigider cu congelator.
Incalzirea se realizeaza prin centrala proprie, calorifere.
Se accepta ca si modalitate de plata surse proprii sau credit bancar.
Prețul este de 139.990€. Specificați telefonic codul de oferta / id: P25229
Citește mai mult
Ceva bun de vanzare apare rar. Oportunitatea de a numi acest loc ' acasa' o poti avea de cand deschizi usa. Eleganta, utilitatea, bunul gust, seriozitatea proprietarilor cu care au tratat acest spatiu, este uimitoare. Apartamentul unde te vei simti bine, ca intr-o comunitate, ca intr-o familie de oameni tineri si frumosi, cu visuri si aspiratii la fel ca ale tale. Te vei simti ca acasa, iti promit.
Avantaje majore ale acestui apartament:
• Apartament nelocuit, cu toate obiectele noi si gradina proprie.
• Un loc de parcare inclus in pret
• Parcare extra pentru vizitatori
• Locatie ferita de aglomeratie
TABOO Imobiliare propune un apartament de vanzare cu 2 camere, decomandat, situat in localitatea Sibiu, zona Calea Cisnadiei - Arhitectilor, aflat la etajul parter inalt intr -un imobil tip bloc cu regim de inaltime pe Parter + 2 Etaje; anul constructiei 2015, structura caramida. Suprafata utila de 48 mp + balcon de 6 mp si gradina proprie de 86 mp.
Apartamentul este structurat astfel:
• Hol la intrare de compartimentare;
• Living room cu bucatariedeschisa si cu iesire in gradina privata;
• Baie cu cabina de dus si geam de aerisire naturala;
• Dormitor cu iesire pe balcon;
Finisajele interioare sunt moderne:
• Usa intrare: metal;
• Usi interioare: celulare;
• Tamplarie ferestre: pvc, termopan;
• Pereti: vopsea lavabila, faianta;
• Podele: parchet, gresie.
Utilitati si dotari:
• Bucatarie: mobilata, utilata;
• Mobilat: complet;
• Utilitati: curent electric, apa, canalizare, gaz, catv, telefon, acces internet, fibra optica;
• Izolatii: exterior, bloc izolat termic;
• Contorizare: apometre, contor gaz, contor curent electric, contorizare separata;
• Caracteristici bloc: interfon, acoperis, gradina.
Apartamentul se vinde mobilat si utilat cu: plita electrica, cuptor, hota, masina de spalat rufe, masina de spalat vase, frigider cu congelator.
Incalzirea se realizeaza prin centrala proprie, calorifere.
Se accepta ca si modalitate de plata surse proprii sau credit bancar.
Prețul este de 139.990€. Specificați telefonic codul de oferta / id: P25229
Specificații
Curent
Apa
Canalizare
Gaz
CATV
Telefon
Acces internet
Fibra optica
Centrala proprie
Calorifere
Exterior
Bloc izolat termic
Vopsea lavabila
Faianta
Parchet
Gresie
Finisat
PVC
Metal
Celulare
Mobilata
Utilata
Apometre
Contor gaz
Complet
Interfon
Acoperis
Gradina
Ati vizualizat anuntul: Apartament de vazare 2 camere cu gradina proprie de 86 mp si parcare
Ești interesat de aceasta proprietate ?
Completeaza datele tale și te vom suna noi!
















