Comision 0%
121.850€
Apartament decomandat 3 camere loc de parcare pod cu echipamente sport
Sibiu, Calea Cisnadiei - Arhitectilor
865
P25073
Video
Harta
Trimite acum link-ul unui prieten pe
Caracteristici
- Nr. camere:3
- Suprafata utila:59 mp
- Etaj:Parter
- Compartimentare:Decomandat
- Tip imobil:Bloc
- Regim inaltime:P+1+M
- Nr. bai:1
- S. construita:74 mp
- Confort:1
- Nr. bucatarii:1
- Nr. balcoane:1
- Nr. parcari:1
- An constructie:2016
- Structura:Caramida
Descriere
Apartament 3 camere de vanzare, decomandat, 59 mp, zona Calea Cisnadiei - Arhitectilor, Sibiu.
Apartament cu comision 0% din partea cumparatorului.
Oportunitatea de a numi acest loc ' acasa' o poti avea de cand deschizi usa. Eleganta, utilitatea, bunul gust, seriozitatea proprietarilor cu care au tratat acest spatiu, este uimitoare. Apartamentul unde te vei simti bine, ca intr-o comunitate, ca intr-o familie de oameni tineri si frumosi, cu visuri si aspiratii la fel ca ale tale. Te vei simti ca acasa, iti promit.
Avantaje majore ale acestui apartament:
• Balcon;
• Loc de parcare privat;
• Spatiu de depozitare in pod + mini sala de sport
• Usa intrare antiefractie, sistem de alarma, 2 seifuri.
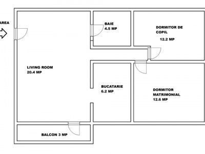
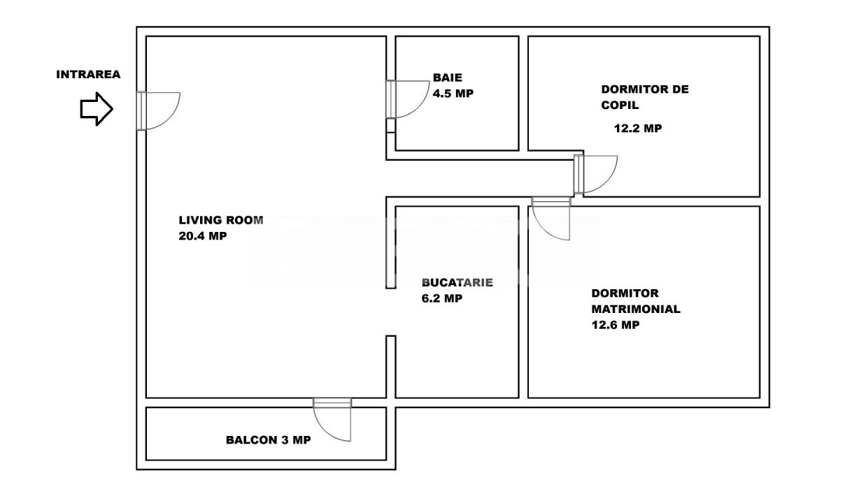
TABOO Imobiliare propune un apartament de vanzare cu 3 camere, decomandat, situat in localitatea Sibiu, zona Calea Cisnadiei - Arhitectilor, aflat la etajul 2 ntr -un imobil tip bloc cu regim de inaltime pe Parter + 2 Etaje si Pod; anul constructiei 2016, structura caramida. Suprafata utila de 59 mp + balcon de 3 mp.
Apartamentul este structurat astfel:
• Hol la intrare;
• Bucatarie separata;
• Baie cu cada hidromasaj;
• Living cu balcon inchis;
• Dormitor matrimonial;
• Dormitor de copii cu dressing;
Finisajele interioare sunt moderne
• Usa intrare: metal;
• Usi interioare: celulare;
• Tamplarie ferestre: pvc, termopan;
• Pereti: vopsea lavabila, faianta;
• Podele: parchet, gresie.
Utilitati si dotari:
• Bucatarie: mobilata, utilata;
• Mobilat: complet;
• Utilitati: curent electric, apa, canalizare, gaz, telefon, acces internet, fibra optica;
• Izolatii: exterior, bloc izolat termic;
• Contorizare: apometre, contor gaz, contor curent electric;
• Caracteristici bloc: interfon, acoperis.
Apartamentul se vinde mobilat si utilat cu: aragaz, cuptor, hota, masina de spalat rufe, frigider cu congelator, cuptor cu microunde.
Incalzirea se realizeaza prin centrala proprie, calorifere. Caloriferele sunt decorative din fonta si plumb, fiind eficiente energetic. Pastreaza caldura intre 12-15 ore dupa folosinta.
Se accepta ca si modalitate de plata surse proprii sau credit bancar.
Prețul este de 121.850€. Specificați telefonic codul de oferta / id: P25073
Citește mai mult
Apartament cu comision 0% din partea cumparatorului.
Oportunitatea de a numi acest loc ' acasa' o poti avea de cand deschizi usa. Eleganta, utilitatea, bunul gust, seriozitatea proprietarilor cu care au tratat acest spatiu, este uimitoare. Apartamentul unde te vei simti bine, ca intr-o comunitate, ca intr-o familie de oameni tineri si frumosi, cu visuri si aspiratii la fel ca ale tale. Te vei simti ca acasa, iti promit.
Avantaje majore ale acestui apartament:
• Balcon;
• Loc de parcare privat;
• Spatiu de depozitare in pod + mini sala de sport
• Usa intrare antiefractie, sistem de alarma, 2 seifuri.
TABOO Imobiliare propune un apartament de vanzare cu 3 camere, decomandat, situat in localitatea Sibiu, zona Calea Cisnadiei - Arhitectilor, aflat la etajul 2 ntr -un imobil tip bloc cu regim de inaltime pe Parter + 2 Etaje si Pod; anul constructiei 2016, structura caramida. Suprafata utila de 59 mp + balcon de 3 mp.
Apartamentul este structurat astfel:
• Hol la intrare;
• Bucatarie separata;
• Baie cu cada hidromasaj;
• Living cu balcon inchis;
• Dormitor matrimonial;
• Dormitor de copii cu dressing;
Finisajele interioare sunt moderne
• Usa intrare: metal;
• Usi interioare: celulare;
• Tamplarie ferestre: pvc, termopan;
• Pereti: vopsea lavabila, faianta;
• Podele: parchet, gresie.
Utilitati si dotari:
• Bucatarie: mobilata, utilata;
• Mobilat: complet;
• Utilitati: curent electric, apa, canalizare, gaz, telefon, acces internet, fibra optica;
• Izolatii: exterior, bloc izolat termic;
• Contorizare: apometre, contor gaz, contor curent electric;
• Caracteristici bloc: interfon, acoperis.
Apartamentul se vinde mobilat si utilat cu: aragaz, cuptor, hota, masina de spalat rufe, frigider cu congelator, cuptor cu microunde.
Incalzirea se realizeaza prin centrala proprie, calorifere. Caloriferele sunt decorative din fonta si plumb, fiind eficiente energetic. Pastreaza caldura intre 12-15 ore dupa folosinta.
Se accepta ca si modalitate de plata surse proprii sau credit bancar.
Prețul este de 121.850€. Specificați telefonic codul de oferta / id: P25073
Specificații
Curent
Apa
Canalizare
Gaz
Telefon
Acces internet
Fibra optica
Centrala proprie
Calorifere
Exterior
Bloc izolat termic
Vopsea lavabila
Faianta
Parchet
Gresie
Mocheta
Finisat
PVC
Metal
Celulare
Mobilata
Utilata
Apometre
Contor gaz
Complet
Interfon
Acoperis
Ati vizualizat anuntul: Apartament decomandat 3 camere loc de parcare pod cu echipamente sport
Ești interesat de aceasta proprietate ?
Completeaza datele tale și te vom suna noi!
























