Exclusivitate
89.900€
EXCLUSIVITATE-Apartament 3 camere decomandat 71 mp zona Mihai Viteazul
Sibiu, Mihai Viteazul
2358
P25715
Harta
Trimite acum link-ul unui prieten pe
Caracteristici
- Nr. camere:3
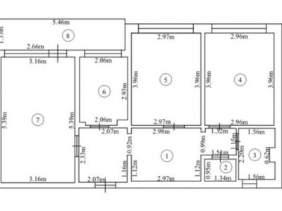
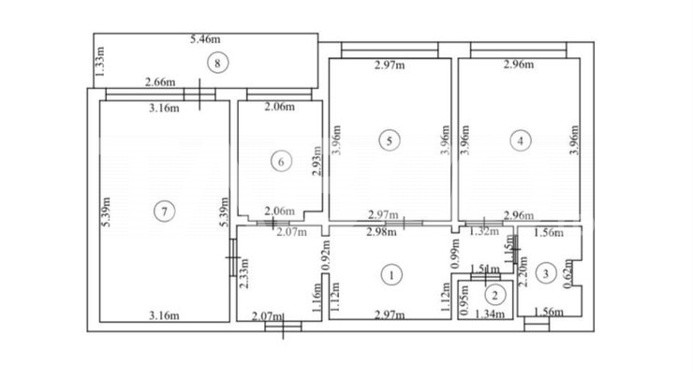
- Suprafata utila:71 mp
- Etaj:Etaj 10
- Compartimentare:Decomandat
- Tip imobil:Bloc
- Regim inaltime:S+P+10
- Nr. bai:1
- S. construita:91 mp
- Confort:1
- Nr. bucatarii:1
- Nr. balcoane:1
- An constructie:1980
- An renovare:2001
- Structura:Caramida
- Orientare:Sud-Vest
Descriere
OPORTUNITATE INVESTITIE
Apartament 3 camere de vanzare, decomandat, 71 mp, zona Mihai Viteazul, strada Ostirii, Sibiu, EXCLUSIVITATE.
Avantaje majore ale acestui apartament:
• Compartimentare buna
• Pretabil investitie sigura
• Vedere spre munte
• Pret avantajos
TABOO Imobiliare propune un apartament de vanzare cu 3 camere, decomandat, situat in localitatea Sibiu, zona Mihai Viteazul, strada Ostirii, aflat la etajul 10 intr -un imobil tip bloc cu regim de inaltime pe Parter + 10 Etaje; anul constructiei 1980, structura caramida. Suprafata utila de 71 mp + balcon de 6 mp.
Apartamentul este structurat astfel:
• Hol;
• Bucatarie;
• Baie;
• Living cu balcon;
• Dormitor;
• Dormitor
• Debara;
Finisajele interioare necesita renovare
• Usa intrare: metal;
• Usi interioare: celulare;
• Tamplarie ferestre: lemn;
• Pereti: vopsea lavabila, faianta;
• Podele: parchet, gresie.
Utilitati si dotari:
• Bucatarie: mobilata, utilata;
• Mobilat: partial;
• Utilitati: curent electric, apa, canalizare, gaz, catv, telefon, acces internet, fibra optica;
• Izolatii: exterior;
• Contorizare: apometre, contor gaz, contor curent electric;
• Caracteristici bloc: interfon, lift.
Apartamentul se vinde semimobilat (cum apare in pozele de prezentare) si utilat cu: aragaz, cuptor, hota.
Incalzirea se realizeaza prin centrala proprie, calorifere.
Se accepta ca si modalitate de plata surse proprii sau credit bancar.
Prețul este de 89.900€. Specificați telefonic codul de oferta / id: P25715
Citește mai mult
Apartament 3 camere de vanzare, decomandat, 71 mp, zona Mihai Viteazul, strada Ostirii, Sibiu, EXCLUSIVITATE.
Avantaje majore ale acestui apartament:
• Compartimentare buna
• Pretabil investitie sigura
• Vedere spre munte
• Pret avantajos
TABOO Imobiliare propune un apartament de vanzare cu 3 camere, decomandat, situat in localitatea Sibiu, zona Mihai Viteazul, strada Ostirii, aflat la etajul 10 intr -un imobil tip bloc cu regim de inaltime pe Parter + 10 Etaje; anul constructiei 1980, structura caramida. Suprafata utila de 71 mp + balcon de 6 mp.
Apartamentul este structurat astfel:
• Hol;
• Bucatarie;
• Baie;
• Living cu balcon;
• Dormitor;
• Dormitor
• Debara;
Finisajele interioare necesita renovare
• Usa intrare: metal;
• Usi interioare: celulare;
• Tamplarie ferestre: lemn;
• Pereti: vopsea lavabila, faianta;
• Podele: parchet, gresie.
Utilitati si dotari:
• Bucatarie: mobilata, utilata;
• Mobilat: partial;
• Utilitati: curent electric, apa, canalizare, gaz, catv, telefon, acces internet, fibra optica;
• Izolatii: exterior;
• Contorizare: apometre, contor gaz, contor curent electric;
• Caracteristici bloc: interfon, lift.
Apartamentul se vinde semimobilat (cum apare in pozele de prezentare) si utilat cu: aragaz, cuptor, hota.
Incalzirea se realizeaza prin centrala proprie, calorifere.
Se accepta ca si modalitate de plata surse proprii sau credit bancar.
Prețul este de 89.900€. Specificați telefonic codul de oferta / id: P25715
Specificații
Curent
Apa
Canalizare
Gaz
CATV
Telefon
Acces internet
Fibra optica
Centrala proprie
Calorifere
Exterior
Vopsea lavabila
Faianta
Parchet
Gresie
Necesita renovare
Lemn
Metal
Celulare
Mobilata
Utilata
Apometre
Contor gaz
Partial
Interfon
Lift
Ati vizualizat anuntul: EXCLUSIVITATE-Apartament 3 camere decomandat 71 mp zona Mihai Viteazul
Ești interesat de aceasta proprietate ?
Completeaza datele tale și te vom suna noi!














