77.000€
2 camere si balcon lift parcare Magnolia- apartament de vanzare
Sibiu, Calea Surii Mici
7
P25546
Harta
Trimite acum link-ul unui prieten pe
Caracteristici
- Nr. camere:2
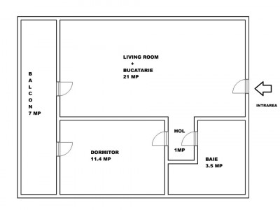
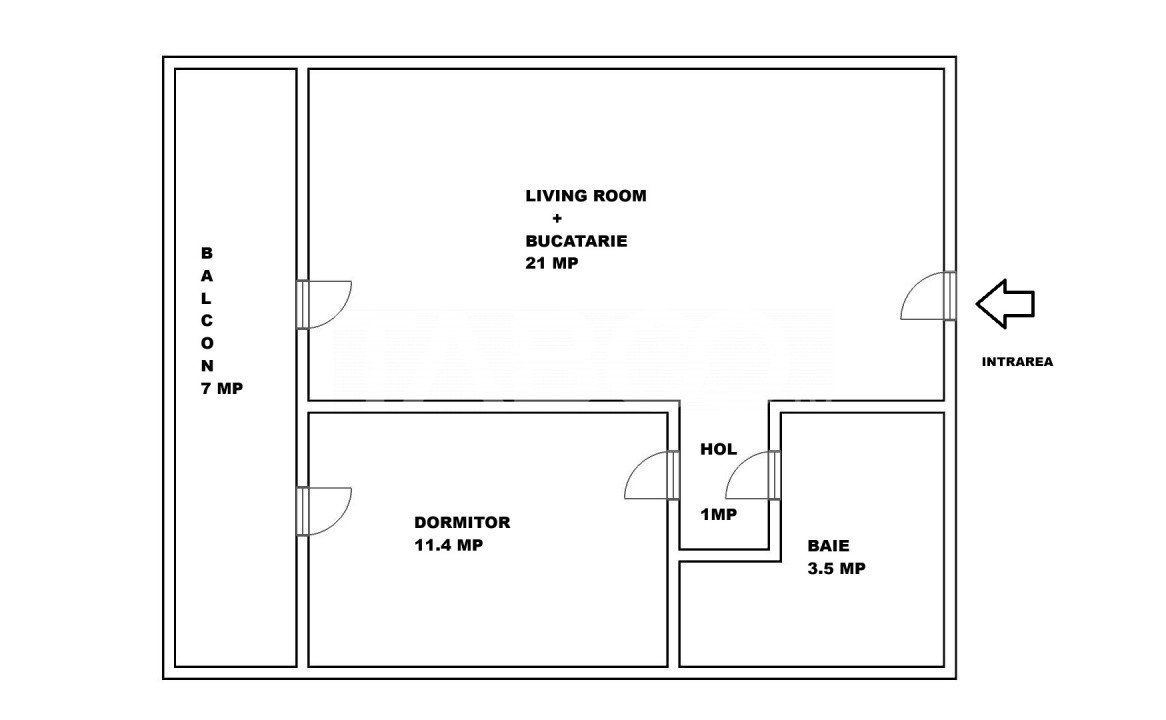
- Suprafata utila:38 mp
- Etaj:Etaj 3
- Compartimentare:Decomandat
- Tip imobil:Bloc
- Regim inaltime:P+4
- Nr. bai:1
- S. construita:53 mp
- Confort:1
- Nr. bucatarii:1
- Nr. balcoane:1
- Nr. parcari:1
- An constructie:2015
- Structura:Caramida
- Orientare:Sud
Descriere
Apartament 2 camere de vanzare, decomandat, 38 mp, zona Calea Surii Mici, Sibiu.
Ai un job in zona Industriala Vest si nu mai suporti traficul infernal dintre casa si locul de munca!?
Apartament cu 2 camere de vanzare in zona Calea Surii Mici, intr-o zona linistita, dar bine conectata la oras. Zona Industriala Vest este aproape, iar magazinele sunt chiar langa bloc. Un loc echilibrat, ideal pentru confort si acces rapid la tot ce conteaza.
Avantaje majore ale acestui apartament:
• Un loc de parcare inclus in pret
• Locatie ferita de aglomeratie
• Etaj intermediar si bloc cu lift
• Personalizare dupa propriile gusturi
TABOO Imobiliare propune un apartament de vanzare cu 2 camere, decomandat, situat in localitatea Sibiu, zona Calea Surii Mici, aflat la etajul 3 intr -un imobil tip bloc cu regim de inaltime pe Parter + 4 Etaje; anul constructiei 2015, structura caramida. Suprafata utila de 38 mp + balcon deschis de 7 mp.
Apartamentul este structurat astfel:
• Living cu bucatarie tip open-space;
• Hol;
• Baie cu cada;
• Dormitor;
• Balcon cu iesire din ambele camere;
Finisajele interioare sunt moderne:
• Usa intrare: metal;
• Usi interioare: celulare;
• Tamplarie ferestre: pvc, termopan;
• Pereti: vopsea lavabila, faianta;
• Podele: parchet, gresie.
Utilitati si dotari:
• Bucatarie: nemobilata, neutilata;
• Mobilat: nemobilat;
• Utilitati: curent electric, apa, canalizare, gaz, catv, telefon, acces internet, fibra optica;
• Izolatii: exterior, bloc izolat termic;
• Contorizare: apometre, contor gaz, contor curent electric, contorizare separata;
• Caracteristici bloc: interfon, lift, acoperis.
Apartamentul se vinde nemobilat si neutilat.
Incalzirea se realizeaza prin centrala proprie, calorifere.
Se accepta ca si modalitate de plata surse proprii sau credit bancar.
Prețul este de 77.000€. Specificați telefonic codul de oferta / id: P25546
Citește mai mult
Ai un job in zona Industriala Vest si nu mai suporti traficul infernal dintre casa si locul de munca!?
Apartament cu 2 camere de vanzare in zona Calea Surii Mici, intr-o zona linistita, dar bine conectata la oras. Zona Industriala Vest este aproape, iar magazinele sunt chiar langa bloc. Un loc echilibrat, ideal pentru confort si acces rapid la tot ce conteaza.
Avantaje majore ale acestui apartament:
• Un loc de parcare inclus in pret
• Locatie ferita de aglomeratie
• Etaj intermediar si bloc cu lift
• Personalizare dupa propriile gusturi
TABOO Imobiliare propune un apartament de vanzare cu 2 camere, decomandat, situat in localitatea Sibiu, zona Calea Surii Mici, aflat la etajul 3 intr -un imobil tip bloc cu regim de inaltime pe Parter + 4 Etaje; anul constructiei 2015, structura caramida. Suprafata utila de 38 mp + balcon deschis de 7 mp.
Apartamentul este structurat astfel:
• Living cu bucatarie tip open-space;
• Hol;
• Baie cu cada;
• Dormitor;
• Balcon cu iesire din ambele camere;
Finisajele interioare sunt moderne:
• Usa intrare: metal;
• Usi interioare: celulare;
• Tamplarie ferestre: pvc, termopan;
• Pereti: vopsea lavabila, faianta;
• Podele: parchet, gresie.
Utilitati si dotari:
• Bucatarie: nemobilata, neutilata;
• Mobilat: nemobilat;
• Utilitati: curent electric, apa, canalizare, gaz, catv, telefon, acces internet, fibra optica;
• Izolatii: exterior, bloc izolat termic;
• Contorizare: apometre, contor gaz, contor curent electric, contorizare separata;
• Caracteristici bloc: interfon, lift, acoperis.
Apartamentul se vinde nemobilat si neutilat.
Incalzirea se realizeaza prin centrala proprie, calorifere.
Se accepta ca si modalitate de plata surse proprii sau credit bancar.
Prețul este de 77.000€. Specificați telefonic codul de oferta / id: P25546
Specificații
Curent
Apa
Canalizare
Gaz
CATV
Telefon
Acces internet
Fibra optica
Centrala proprie
Calorifere
Exterior
Bloc izolat termic
Vopsea lavabila
Faianta
Parchet
Gresie
PVC
Metal
Celulare
Nemobilata
Neutilata
Apometre
Contor gaz
Nemobilat
Interfon
Lift
Acoperis
Ati vizualizat anuntul: 2 camere si balcon lift parcare Magnolia- apartament de vanzare
Ești interesat de aceasta proprietate ?
Completeaza datele tale și te vom suna noi!











