Comision 0%
164.900€
COMISION 0% Apartament de vanzare 4 camere 98mp 2 bai parcare Lupeni
Sibiu, Lupeni
2036
P25382
Harta
Trimite acum link-ul unui prieten pe
Caracteristici
- Nr. camere:4
- Suprafata utila:98 mp
- Etaj:Parter
- Compartimentare:Semidecomandat
- Tip imobil:Bloc
- Regim inaltime:P+3+M
- Nr. bai:2
- S. construita:121 mp
- Confort:1
- Nr. bucatarii:1
- Nr. balcoane:1
- Nr. parcari:1
- An constructie:2008
- Structura:Caramida
Descriere
Apartament 4 camere de vanzare, semidecomandat, 98 mp, zona Lupeni, Sibiu. COMISION 0%
Avantaje majore ale acestui apartament:
• Loc de parcare inclus in pret
• Pretabil investitie sigura
• Locatie linistita, ferita de aglomeratie
• Curte privata cu porti cu telecomanda
• 2 bai
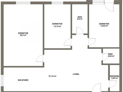
TABOO Imobiliare propune un apartament de vanzare cu 4 camere, semidecomandat, situat in localitatea Sibiu, zona Lupeni, aflat la parterul unui imobil tip bloc cu regim de inaltime pe Parter + 3 Etaje + Mansarda; anul constructiei 2008, structura caramida. Suprafata utila de 98 mp + balcon de 3 mp.
Apartamentul este structurat astfel:
• Hol;
• Living cu bucatarie tip open-space;
• Camara;
• WC serviciu;
• Hol intermediar;
• Baie;
• Dormitor cu balcon;
• 2 Dormitoare;
Finisajele interioare sunt clasice:
• Usa intrare: metal;
• Usi interioare: celulare;
• Tamplarie ferestre: pvc, termopan;
• Pereti: vopsea lavabila, faianta;
• Podele: parchet, gresie.
Utilitati si dotari:
• Bucatarie: nemobilata, neutilata;
• Mobilat: nemobilat;
• Utilitati: curent electric, apa, canalizare, gaz, catv, telefon, acces internet, fibra optica;
• Izolatii: exterior, bloc izolat termic;
• Contorizare: apometre, contor gaz, contor curent electric, contorizare separata;
• Caracteristici bloc: interfon, acoperis, curte, telecomanda poarta acces auto.
Apartamentul se vinde nemobilat si neutilat.
Incalzirea se realizeaza prin centrala proprie si calorifere.
Se accepta ca si modalitate de plata surse proprii sau credit bancar.
Prețul este de 164.900€. Specificați telefonic codul de oferta / id: P25382
Citește mai mult
Avantaje majore ale acestui apartament:
• Loc de parcare inclus in pret
• Pretabil investitie sigura
• Locatie linistita, ferita de aglomeratie
• Curte privata cu porti cu telecomanda
• 2 bai
TABOO Imobiliare propune un apartament de vanzare cu 4 camere, semidecomandat, situat in localitatea Sibiu, zona Lupeni, aflat la parterul unui imobil tip bloc cu regim de inaltime pe Parter + 3 Etaje + Mansarda; anul constructiei 2008, structura caramida. Suprafata utila de 98 mp + balcon de 3 mp.
Apartamentul este structurat astfel:
• Hol;
• Living cu bucatarie tip open-space;
• Camara;
• WC serviciu;
• Hol intermediar;
• Baie;
• Dormitor cu balcon;
• 2 Dormitoare;
Finisajele interioare sunt clasice:
• Usa intrare: metal;
• Usi interioare: celulare;
• Tamplarie ferestre: pvc, termopan;
• Pereti: vopsea lavabila, faianta;
• Podele: parchet, gresie.
Utilitati si dotari:
• Bucatarie: nemobilata, neutilata;
• Mobilat: nemobilat;
• Utilitati: curent electric, apa, canalizare, gaz, catv, telefon, acces internet, fibra optica;
• Izolatii: exterior, bloc izolat termic;
• Contorizare: apometre, contor gaz, contor curent electric, contorizare separata;
• Caracteristici bloc: interfon, acoperis, curte, telecomanda poarta acces auto.
Apartamentul se vinde nemobilat si neutilat.
Incalzirea se realizeaza prin centrala proprie si calorifere.
Se accepta ca si modalitate de plata surse proprii sau credit bancar.
Prețul este de 164.900€. Specificați telefonic codul de oferta / id: P25382
Specificații
Curent
Apa
Canalizare
Gaz
CATV
Telefon
Acces internet
Fibra optica
Centrala proprie
Calorifere
Exterior
Bloc izolat termic
Vopsea lavabila
Faianta
Parchet
Gresie
Finisat
PVC
Metal
Celulare
Debara
Nemobilata
Neutilata
Apometre
Contor gaz
Nemobilat
Interfon
Acoperis
Curte
Ati vizualizat anuntul: COMISION 0% Apartament de vanzare 4 camere 98mp 2 bai parcare Lupeni
Ești interesat de aceasta proprietate ?
Completeaza datele tale și te vom suna noi!









