74.900€
Apartament 3 camere semidecomandat de vanzare etaj intermediar Sibiu
Sibiu, Tiglari
4
P26692
Harta
Trimite acum link-ul unui prieten pe
Caracteristici
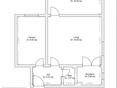
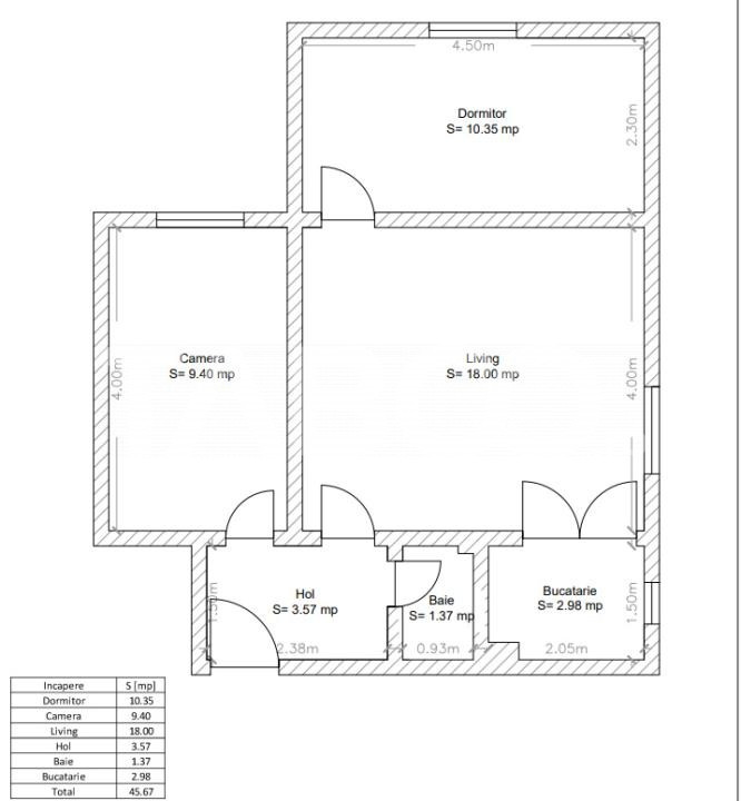
- Nr. camere:3
- Suprafata utila:46 mp
- Etaj:Etaj 3
- Compartimentare:Semidecomandat
- Tip imobil:Bloc
- Regim inaltime:P+4
- Nr. bai:1
- S. construita:55 mp
- Confort:1
- Nr. bucatarii:1
- An constructie:1970
- Structura:Beton
Descriere
Apartament 3 camere de vanzare, semidecomandat, 46 mp, zona Tiglari, Sibiu.
Avantaje majore ale acestui apartament:
• Magazine in apropiere;
• Etaj intermediar;
• Cresa, gradinita, scoala in proximitate;
• Mijloce de transport in comun;
TABOO Imobiliare propune un apartament de vanzare cu 3 camere, semidecomandat, situat in localitatea Sibiu, zona Tiglari, aflat la etajul 3 intr -un imobil tip bloc cu regim de inaltime pe Parter + 4 Etaje; anul constructiei 1970, structura beton. Suprafata utila de 46 mp
Apartamentul este structurat astfel:
• Hol;
• Bucatarie;
• Baie;
• Living ;
• Dormitor ;
• Camara;
Finisajele interioare sunt clasice
• Usa intrare: metal;
• Usi interioare: lemn;
• Tamplarie ferestre: pvc, termopan;
• Pereti: vopsea lavabila, faianta;
• Podele: parchet, gresie.
Utilitati si dotari:
• Bucatarie: mobilata, utilata;
• Mobilat: complet;
• Utilitati: curent electric, apa, canalizare, gaz, catv, telefon, acces internet, fibra optica;
• Izolatii: exterior, bloc izolat termic;
• Contorizare: apometre, contor gaz, contor curent electric;
• Caracteristici bloc: interfon.
Apartamentul se vinde mobilat si utilat cu: plita electrica, cuptor, hota, masina de spalat rufe,frigider cu congelator,
Incalzirea se realizeaza prin centrala proprie, calorifere
Se accepta ca si modalitate de plata surse proprii sau credit bancar.
Prețul este de 74.900€. Specificați telefonic codul de oferta / id: P26692
Citește mai mult
Avantaje majore ale acestui apartament:
• Magazine in apropiere;
• Etaj intermediar;
• Cresa, gradinita, scoala in proximitate;
• Mijloce de transport in comun;
TABOO Imobiliare propune un apartament de vanzare cu 3 camere, semidecomandat, situat in localitatea Sibiu, zona Tiglari, aflat la etajul 3 intr -un imobil tip bloc cu regim de inaltime pe Parter + 4 Etaje; anul constructiei 1970, structura beton. Suprafata utila de 46 mp
Apartamentul este structurat astfel:
• Hol;
• Bucatarie;
• Baie;
• Living ;
• Dormitor ;
• Camara;
Finisajele interioare sunt clasice
• Usa intrare: metal;
• Usi interioare: lemn;
• Tamplarie ferestre: pvc, termopan;
• Pereti: vopsea lavabila, faianta;
• Podele: parchet, gresie.
Utilitati si dotari:
• Bucatarie: mobilata, utilata;
• Mobilat: complet;
• Utilitati: curent electric, apa, canalizare, gaz, catv, telefon, acces internet, fibra optica;
• Izolatii: exterior, bloc izolat termic;
• Contorizare: apometre, contor gaz, contor curent electric;
• Caracteristici bloc: interfon.
Apartamentul se vinde mobilat si utilat cu: plita electrica, cuptor, hota, masina de spalat rufe,frigider cu congelator,
Incalzirea se realizeaza prin centrala proprie, calorifere
Se accepta ca si modalitate de plata surse proprii sau credit bancar.
Prețul este de 74.900€. Specificați telefonic codul de oferta / id: P26692
Specificații
Curent
Apa
Canalizare
Gaz
CATV
Telefon
Acces internet
Fibra optica
Centrala proprie
Calorifere
Exterior
Bloc izolat termic
Vopsea lavabila
Faianta
Parchet
Gresie
Finisat
PVC
Metal
Lemn
Mobilata
Utilata
Apometre
Contor gaz
Complet
Interfon
Ati vizualizat anuntul: Apartament 3 camere semidecomandat de vanzare etaj intermediar Sibiu
Ești interesat de aceasta proprietate ?
Completeaza datele tale și te vom suna noi!




