240.000€
Duplex de vanzare 380mp teren liber 4 camere 2 bai 2 parcari Selimbar
Sibiu, Selimbar
315
P25184
Harta
Trimite acum link-ul unui prieten pe
Caracteristici
- Nr. camere:4
- Suprafata. utila:124 mp
- S. construita:173 mp
- S. teren:475 mp
- Nr. bai:2
- Nr. bucatarii:1
- Nr. balcoane:2
- Nr. parcari:2
- Front stradal:36 m
- Nr. fronturi:1
- An constructie:2025
- Structura rezistenta:Caramida
- Regim inaltime:P+1
Descriere
Cauti o locuinta ideala pentru tine si pentru familia ta in Sibiu? Iti doresti o casa intr-o zona linistita, cu curte? TABOO Imobiliare iti propune aceasta casa de vanzare cu 4 camere in zona Selimbar, Sibiu. Terenul casei are o suprafata totala de 475mp, iar suprafata utila a casei este de 124 mp. Structura cladirii este din caramida, are sistem de incalzire cu centrala proprie si incalzire in pardoseala. Casa de vanzare din zona Selimbar, Sibiu a fost construita in anul 2025 si are suprafata construita de 173 mp. Casa de vanzare din Sibiu este o casa de tip duplex, cu un regim de inaltime Parter + 1 etaj.
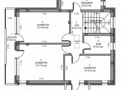
Casa este compartimentata astfel:
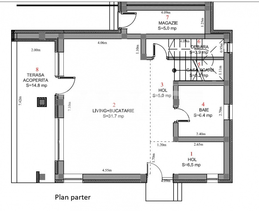
~ Parter: hol, living cu bucatarie tip open-space, baie, debara, terasa acoperita;
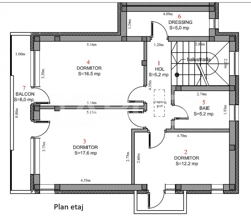
~ Etaj: hol, 2 dormitoare cu balcon comun, dormitor cu balcon separat, dressing si baie;
~ Pod depozitare.
Casa are o curte libera 450 mp cu 2 locuri de parcare, loc pentru zona de joaca a copiilor, 1 terasa de relaxare si spatiu de depozitare. Indicator performanta energetica: Clasa B.
Casa se vinde la alb in interior si la cheie in exterior. Zona unde este amplasata casa este foarte bine cotata pe piata imobiliara.
La cerere se poate vinde si la stadiul de rosu interior, cheie exterior.
Prețul este de 240.000€. Specificați telefonic codul de oferta / id: P25184
Citește mai mult
Casa este compartimentata astfel:
~ Parter: hol, living cu bucatarie tip open-space, baie, debara, terasa acoperita;
~ Etaj: hol, 2 dormitoare cu balcon comun, dormitor cu balcon separat, dressing si baie;
~ Pod depozitare.
Casa are o curte libera 450 mp cu 2 locuri de parcare, loc pentru zona de joaca a copiilor, 1 terasa de relaxare si spatiu de depozitare. Indicator performanta energetica: Clasa B.
Casa se vinde la alb in interior si la cheie in exterior. Zona unde este amplasata casa este foarte bine cotata pe piata imobiliara.
La cerere se poate vinde si la stadiul de rosu interior, cheie exterior.
Prețul este de 240.000€. Specificați telefonic codul de oferta / id: P25184
Specificații
Curent
Apa
Gaz
Fosa septica
Curent trifazic
CATV
Telefon
Acces internet
Fibra optica
Centrala proprie
Incalzire pardoseala
Exterior
PVC
PVC
Spatiu depozitare
Nemobilata
Neutilata
Apometre
Contor gaz
Nemobilat
Ati vizualizat anuntul: Duplex de vanzare 380mp teren liber 4 camere 2 bai 2 parcari Selimbar
Ești interesat de aceasta proprietate ?
Completeaza datele tale și te vom suna noi!

















