227.000€
Casa individuala pe un singur nivel 4 camere teren 500 mp
Cisnadie
572
P25854
Harta
Trimite acum link-ul unui prieten pe
Caracteristici
- Nr. camere:4
- Suprafata. utila:130 mp
- S. construita:176 mp
- S. teren:500 mp
- Nr. bai:2
- Nr. bucatarii:1
- Nr. parcari:2
- Front stradal:20 m
- Nr. fronturi:1
- An constructie:2024
- Structura rezistenta:Caramida
- Regim inaltime:P
- Orientare:Sud
Descriere
De mentionat ca pozele sunt randari si stadiul de predare al casei este la stadiul de ALB.
Doresti sa achizitionezi o casa individuala pe un singur nivel, pe care sa ti-o amenajezi si mobilezi dupa bunul plac?
Aceasta casa de vanzare individuala cu 4 camere, 2 bai, cu o suprafata totala de teren de 500 mp, asteapta sa fie descoperita si personalizata.
Casa are suprafata utila de 130 mp pe o parcela de teren de 500 mp. Teren liber dupa constructie 324 mp. Structura cladirii este din caramida, si este situata in Cisnadie, la cateva minute de oras.
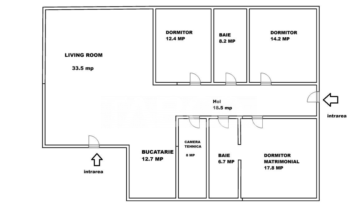
Casa este compartimentata astfel:
~ Parter: hol, living cu o bucatarie semi-deschisa( care poate fi inchisa usor), dormitor matrimonial cu baie proprie, 2 dormitoare secundare, baie, terasa de 20 mp. Casa are si pod cu placa de beton, cu o suprafata de alti 130 metri. Poate fi folosit ca si depozitare sau compartimenta dupa nevoi. Podul este racordat la utilitati.
Casa are o curte libera de 324 mp, cu posibilitate de loc de parcare si suficient loc pentru zona de joaca a copiilor.
Casa se preda la stadiul de ALB, cu posibilitate de predare la cheie. Beneficiaza de acces auto. Incalzirea se realizeaza prin centrala proprie si incalzire in pardoseala.
Prețul este de 227.000€. Specificați telefonic codul de oferta / id: P25854
Citește mai mult
Doresti sa achizitionezi o casa individuala pe un singur nivel, pe care sa ti-o amenajezi si mobilezi dupa bunul plac?
Aceasta casa de vanzare individuala cu 4 camere, 2 bai, cu o suprafata totala de teren de 500 mp, asteapta sa fie descoperita si personalizata.
Casa are suprafata utila de 130 mp pe o parcela de teren de 500 mp. Teren liber dupa constructie 324 mp. Structura cladirii este din caramida, si este situata in Cisnadie, la cateva minute de oras.
Casa este compartimentata astfel:
~ Parter: hol, living cu o bucatarie semi-deschisa( care poate fi inchisa usor), dormitor matrimonial cu baie proprie, 2 dormitoare secundare, baie, terasa de 20 mp. Casa are si pod cu placa de beton, cu o suprafata de alti 130 metri. Poate fi folosit ca si depozitare sau compartimenta dupa nevoi. Podul este racordat la utilitati.
Casa are o curte libera de 324 mp, cu posibilitate de loc de parcare si suficient loc pentru zona de joaca a copiilor.
Casa se preda la stadiul de ALB, cu posibilitate de predare la cheie. Beneficiaza de acces auto. Incalzirea se realizeaza prin centrala proprie si incalzire in pardoseala.
Prețul este de 227.000€. Specificați telefonic codul de oferta / id: P25854
Specificații
Curent
Apa
Canalizare
Gaz
CATV
Telefon
Acces internet
Fibra optica
Centrala proprie
Incalzire pardoseala
Exterior
Vopsea lavabila
Finisat
PVC
PVC
Spatiu depozitare
Nemobilata
Neutilata
Apometre
Contor gaz
Nemobilat
Curte
Ati vizualizat anuntul: Casa individuala pe un singur nivel 4 camere teren 500 mp
Ești interesat de aceasta proprietate ?
Completeaza datele tale și te vom suna noi!





