270.940€ + TVA
De vanzare apartament cu 3 camere semifinisat Andrei Muresanu Sud
Cluj-Napoca, Andrei Muresanu
173
P25089
Harta
Trimite acum link-ul unui prieten pe
Caracteristici
- Nr. camere:3
- Suprafata utila:81 mp
- Etaj:Etaj 2
- Compartimentare:Semidecomandat
- Tip imobil:Bloc
- Regim inaltime:S+D+P+5
- Nr. bai:2
- S. construita:106 mp
- Confort:1
- Nr. bucatarii:1
- Nr. balcoane:1
- Nr. garaje:1
- An constructie:2025
- Structura:Caramida
- Orientare:Sud-Vest
Descriere
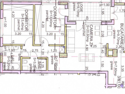
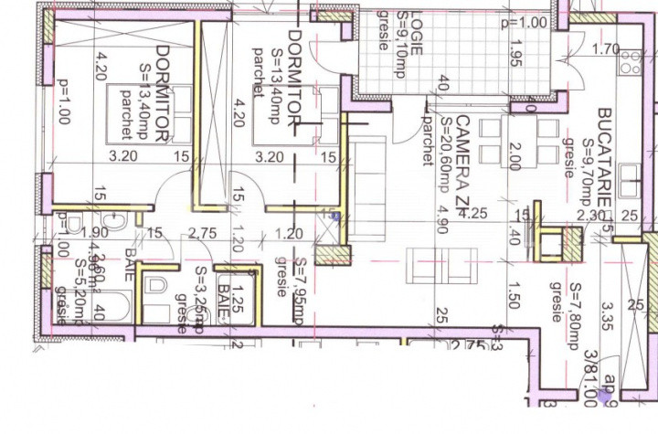
Apartament 3 camere de vanzare, decomandat, 81 mp, zona Andrei Muresanu, Cluj-Napoca.
TABOO Imobiliare propune un apartament de vanzare cu 3 camere, decomandat, situat in localitatea Cluj-Napoca, zona Andrei Muresanu, aflat la etajul 2 intr -un imobil tip bloc cu regim de inaltime pe S+D+P + 7 Etaje; anul constructiei 2025, structura caramida. Suprafata utila de 81 mp + balcon de 9 mp.
Apartamentul este structurat astfel:
• Hol;
• Bucatarie+ Living cu balcon;
• 2 Bai;
• 2 Dormitoare
Finisajele interioare sunt urmatoarele:
• Usa intrare: metal;
• Tamplarie ferestre: pvc, termopan;
• Pereti: vopsea lavabila;
• Podele: nefinisat.
Utilitati si dotari:
• Bucatarie: nemobilata, neutilata;
• Mobilat: nemobilat;
• Utilitati: curent electric, apa, canalizare, gaz, catv, telefon, acces internet;
• Izolatii: exterior, bloc izolat termic;
• Contorizare: apometre, contor gaz, contor curent electric;
• Caracteristici bloc: interfon, supraveghere video, lift.
Apartamentul se vinde semifinisat.
Parcarea subterana se vinde separat.
Incalzirea se realizeaza prin centrala imobil, incalzire pardoseala.
Se accepta ca si modalitate de plata surse proprii sau credit bancar.
Prețul este de 270.940€ + TVA. Specificați telefonic codul de oferta / id: P25089
Citește mai mult
TABOO Imobiliare propune un apartament de vanzare cu 3 camere, decomandat, situat in localitatea Cluj-Napoca, zona Andrei Muresanu, aflat la etajul 2 intr -un imobil tip bloc cu regim de inaltime pe S+D+P + 7 Etaje; anul constructiei 2025, structura caramida. Suprafata utila de 81 mp + balcon de 9 mp.
Apartamentul este structurat astfel:
• Hol;
• Bucatarie+ Living cu balcon;
• 2 Bai;
• 2 Dormitoare
Finisajele interioare sunt urmatoarele:
• Usa intrare: metal;
• Tamplarie ferestre: pvc, termopan;
• Pereti: vopsea lavabila;
• Podele: nefinisat.
Utilitati si dotari:
• Bucatarie: nemobilata, neutilata;
• Mobilat: nemobilat;
• Utilitati: curent electric, apa, canalizare, gaz, catv, telefon, acces internet;
• Izolatii: exterior, bloc izolat termic;
• Contorizare: apometre, contor gaz, contor curent electric;
• Caracteristici bloc: interfon, supraveghere video, lift.
Apartamentul se vinde semifinisat.
Parcarea subterana se vinde separat.
Incalzirea se realizeaza prin centrala imobil, incalzire pardoseala.
Se accepta ca si modalitate de plata surse proprii sau credit bancar.
Prețul este de 270.940€ + TVA. Specificați telefonic codul de oferta / id: P25089
Specificații
Curent
Apa
Canalizare
Gaz
CATV
Telefon
Acces internet
Centrala imobil
Incalzire pardoseala
Exterior
Bloc izolat termic
Vopsea lavabila
PVC
Metal
Nemobilata
Neutilata
Apometre
Contor gaz
Nemobilat
Interfon
Lift
Ati vizualizat anuntul: De vanzare apartament cu 3 camere semifinisat Andrei Muresanu Sud
Ești interesat de aceasta proprietate ?
Completeaza datele tale și te vom suna noi!








