94.900€
Apartament decomandat de vanzare 2 camere balcon lift Mihai Viteazul
Sibiu, Mihai Viteazul
357
P26782
Video
Harta
Trimite acum link-ul unui prieten pe
Caracteristici
- Nr. camere:2
- Suprafata utila:47 mp
- Etaj:Etaj 10
- Compartimentare:Decomandat
- Tip imobil:Bloc
- Regim inaltime:D+P+10
- Nr. bai:1
- S. construita:63 mp
- Confort:1
- Nr. bucatarii:1
- Nr. balcoane:1
- An constructie:1979
- An renovare:2015
- Structura:Beton
- Orientare:Sud
Descriere
Apartament 2 camere de vanzare, decomandat, 47 mp, zona Mihai Viteazul, Sibiu. Apartament in zona exceptionala, aflat la ultimul etaj, fara vecini deasupra. Privelistea este garantata.
Avantaje majore ale acestui apartament:
• Pivnita spatioasa de depozitare
• Pretabil investitie sigura
• Parcare extra pentru vizitatori
• Locatie ferita de aglomeratie
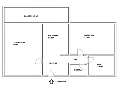
TABOO Imobiliare propune un apartament de vanzare cu 2 camere, decomandat, situat in localitatea Sibiu, zona Mihai Viteazul, aflat la etajul 10 intr -un imobil tip bloc cu regim de inaltime pe Parter + 10 Etaje; anul constructiei 1979, structura beton. Suprafata utila de 47 mp + balcon inchis de 7 mp.
Apartamentul este structurat astfel:
• Hol mare din care se face accesul in toate incaperile;
• Living cu iesire in balcon;
• Bucatarie separata;
• Dormitor;
• Baie cu geam de aerisire;
• Pivnita.
Finisajele interioare sunt moderne:
• Usa intrare: metal;
• Usi interioare: lemn;
• Tamplarie ferestre: pvc, termopan;
• Pereti: vopsea lavabila, faianta;
• Podele: parchet, gresie.
Utilitati si dotari:
• Bucatarie: mobilata, utilata;
• Mobilat: complet;
• Utilitati: curent electric, apa, canalizare, gaz, catv, telefon, acces internet, fibra optica;
• Izolatii: exterior, bloc izolat termic;
• Contorizare: apometre, contor gaz, contor curent electric, contorizare separata;
• Caracteristici bloc: interfon, lift, acoperis.
Apartamentul se vinde mobilat si utilat cu:aragaz, masina de spalat rufe, frigider cu congelator,
Incalzirea se realizeaza prin centrala proprie, calorifere.
Se accepta ca si modalitate de plata surse proprii sau credit bancar.
Prețul este de 94.900€. Specificați telefonic codul de oferta / id: P26782
Citește mai mult
Avantaje majore ale acestui apartament:
• Pivnita spatioasa de depozitare
• Pretabil investitie sigura
• Parcare extra pentru vizitatori
• Locatie ferita de aglomeratie
TABOO Imobiliare propune un apartament de vanzare cu 2 camere, decomandat, situat in localitatea Sibiu, zona Mihai Viteazul, aflat la etajul 10 intr -un imobil tip bloc cu regim de inaltime pe Parter + 10 Etaje; anul constructiei 1979, structura beton. Suprafata utila de 47 mp + balcon inchis de 7 mp.
Apartamentul este structurat astfel:
• Hol mare din care se face accesul in toate incaperile;
• Living cu iesire in balcon;
• Bucatarie separata;
• Dormitor;
• Baie cu geam de aerisire;
• Pivnita.
Finisajele interioare sunt moderne:
• Usa intrare: metal;
• Usi interioare: lemn;
• Tamplarie ferestre: pvc, termopan;
• Pereti: vopsea lavabila, faianta;
• Podele: parchet, gresie.
Utilitati si dotari:
• Bucatarie: mobilata, utilata;
• Mobilat: complet;
• Utilitati: curent electric, apa, canalizare, gaz, catv, telefon, acces internet, fibra optica;
• Izolatii: exterior, bloc izolat termic;
• Contorizare: apometre, contor gaz, contor curent electric, contorizare separata;
• Caracteristici bloc: interfon, lift, acoperis.
Apartamentul se vinde mobilat si utilat cu:aragaz, masina de spalat rufe, frigider cu congelator,
Incalzirea se realizeaza prin centrala proprie, calorifere.
Se accepta ca si modalitate de plata surse proprii sau credit bancar.
Prețul este de 94.900€. Specificați telefonic codul de oferta / id: P26782
Specificații
Curent
Apa
Canalizare
Gaz
CATV
Telefon
Acces internet
Fibra optica
Centrala proprie
Calorifere
Exterior
Bloc izolat termic
Vopsea lavabila
Faianta
Parchet
Gresie
Finisat
PVC
Metal
Lemn
Pivnita
Mobilata
Utilata
Apometre
Contor gaz
Complet
Interfon
Lift
Acoperis
Ati vizualizat anuntul: Apartament decomandat de vanzare 2 camere balcon lift Mihai Viteazul
Ești interesat de aceasta proprietate ?
Completeaza datele tale și te vom suna noi!











